EasyManua.ls Logo

Gree GMVVQ224WM/C-X - Page 27

Gree GMVVQ224WM/C-X
79 pages
Print Icon
To Next Page IconTo Next Page
To Next Page IconTo Next Page
To Previous Page IconTo Previous Page
To Previous Page IconTo Previous Page
Loading...
GMV Heat Recovery DC Inverter VRF
23
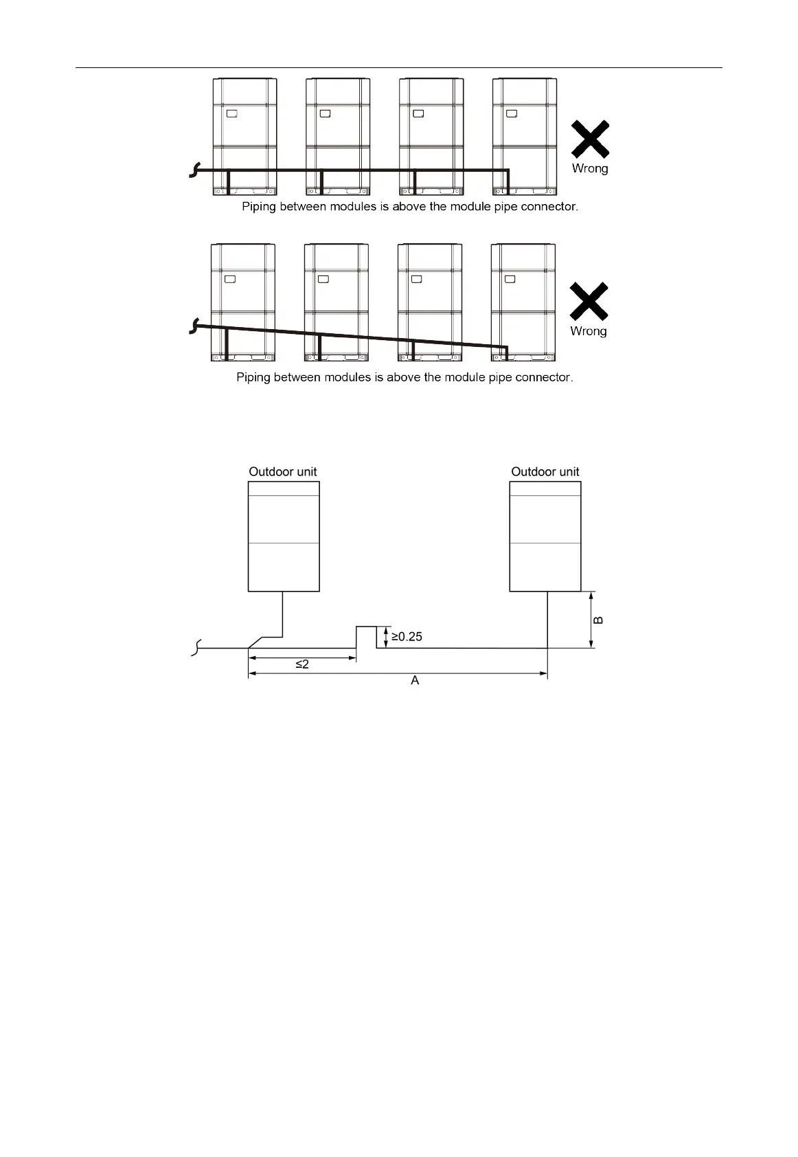
Fig.3.3.5
Fig.3.3.6
(2) The drop and the length of the pipe between the outdoor units are as follows.
Unit: m
Fig.3.3.7
NOTE
When the distance A+B between the outdoor modules exceeds 2m, U-type oil trap should be
added at low-pressure gas pipe and is no more than 2m away from the outdoor manifold, and
A+B≤10m. The height drop among the outdoor units is 0m.
3.3.5 Size requirement for branch pipe and piping (main pipe)
(1) Connection sketch map of single-module system

Related product manuals