EasyManua.ls Logo

Gree GWH18MC-D3DNA3D

Gree GWH18MC-D3DNA3D
24 pages
To Next Page IconTo Next Page
To Next Page IconTo Next Page
To Previous Page IconTo Previous Page
To Previous Page IconTo Previous Page
Loading...
10
INSTALLATION OF INDOOR UNIT
21 3/8
1 5/8
1 5/8
5 5/8
3 1/8
5 1/8
6
3/4
Φ2 1/8
5 1/8
Φ2 1/8
27
5 1/2
7 1/4
3 1/2
2 1/2
1 3/4
12 3/8
Φ2 3/4
Φ2 3/4
1/2
4 3/4
7 5/8
2
11 3/4
1 3/4
27 3/8
Φ
2
1
/
8
Φ
2
1
/
8
9 3/4
13 1/8
29 3/8
11
1/4
1
5/8
Φ
2
3
/
4
Φ
2
3
/
4
4
2
1/8
12 3/4
5
9 3/4
13 1/8
29 3/8
11
1/4
1
5/8
Φ
2
3
/
4
Φ
2
3
/
4
4
2
1/8
12 3/4
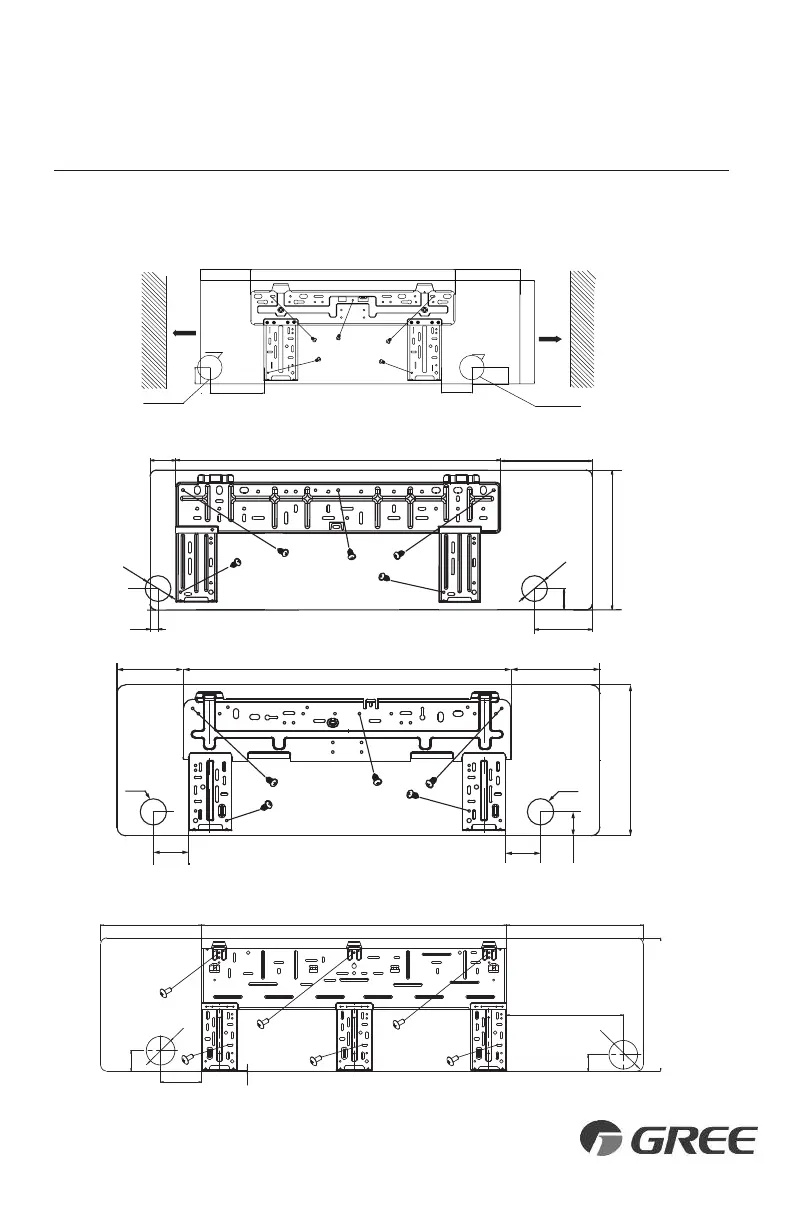
Mounting Bracket Diagrams and Dimensions
09K and 12K Unit
18K Unit
24K Unit
30K and 36K Unit
Right
(Rear piping hole)
Left
W
all Wall
(Rear piping hole)

Other manuals for Gree GWH18MC-D3DNA3D

Related product manuals