EasyManua.ls Logo

Haier AC90S2SH1FA - Page 18

Haier AC90S2SH1FA
25 pages
Print Icon
To Next Page IconTo Next Page
To Next Page IconTo Next Page
To Previous Page IconTo Previous Page
To Previous Page IconTo Previous Page
Loading...
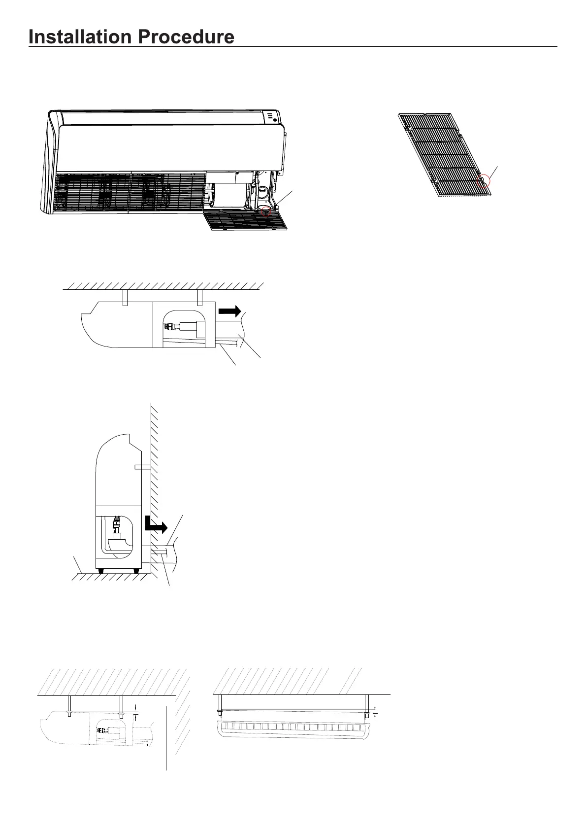
Cut intake grill for drain pipe
(1) Tools:Knife or Pliers.
(2) Cut the intake grill before installing the drain pipe,Then,pass the drain pipe through the hole.As the following schematic.
Installing the drain pipe and the connecting pipe
(1) When the unit is installed in the ceiling,Installing them as below.
d
rain pipe
(2) When the unit is installed on the floor,Installing them as below.
ceiling
connecting
pipe
d
rain pipe
connecting
pipe
Floor
16
CAUTION
When the unit is installed in the ceiling,side B is lower than side A for condensate discharge.As below.
10mm-15mm
10mm-15mm
A
B
A
B
Location of the cut
After removal

Related product manuals