EasyManua.ls Logo

Haier AD71S2SM7FA - Page 19

Haier AD71S2SM7FA
24 pages
Print Icon
To Next Page IconTo Next Page
To Next Page IconTo Next Page
To Previous Page IconTo Previous Page
To Previous Page IconTo Previous Page
Loading...
2.Installation of indoor unit
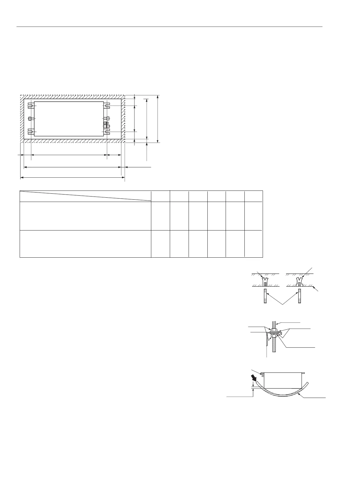
Fix the indoor unit to the hanger bolts.
If
required, it is possible to suspend the unit to the beam, etc. Directly
by use of the bolts without using the hanger bolts.
When the dimensions of main unit and ceiling holes does not match,
it can be adjusted with the slot holes of hanging bracket.
Note
Adjusting to the levelness
(a) Adjust the out-of levelness using a level or by the following method.
Make adjustment so that the relation between the lower surface
of the unit proper and water level in the hose becomes as given
below.
(b) Unless the adjustment to the levelness is made properly,
malfunctioning or failure of the float switch may occur.
PVC hose
Piping side
Supply water
Water level
0~5 mm
(0~0.2")
Bring the piping side slightly lower.
Hanging bolt
M10 nut
Main unit
M10 washer
M10 spring washer
1. Preparation for suspending the unit
a.Size of hole at ceiling and position of hanging bolts
<Combination with silent panel>
b.Hanger bolts installation
Use care of the piping direction when the unit is installed.
Hanging bolt M10
Hole-in anchor
Hole-in plug
Insert
Concrete
Indoor Unit
150
A
B
C
Hanging bolt position
Ceiling hole size
Panel dimensions
300
30
30
Ceiling ~ panel
wrap dimensions
Ceiling ~ panel
wrap dimensions
Hanging bolt position
Ceiling hole size
Panel dimensions
75
D
E
F
70
Pipe connection
side
Installation Procedure
17
Dimensions
A(mm) B(mm)C(mm)
Model
D(mm) E(mm) F(mm)
1162 1612 1672 620 765 825
AD71S2SM7FA
1562 2012 2072 620 765 825
AD71S2SM7FA
AD100S2SM7FA
AD125S2SM7FA
AD140S2SM7FA
AD100S2SM7FA
AD125S2SM7FA
AD140S2SM7FA

Related product manuals