EasyManua.ls Logo

Haier AS24NE3HAA - Wiring Diagrams

Haier AS24NE3HAA
35 pages
To Next Page IconTo Next Page
To Next Page IconTo Next Page
To Previous Page IconTo Previous Page
To Previous Page IconTo Previous Page
Loading...
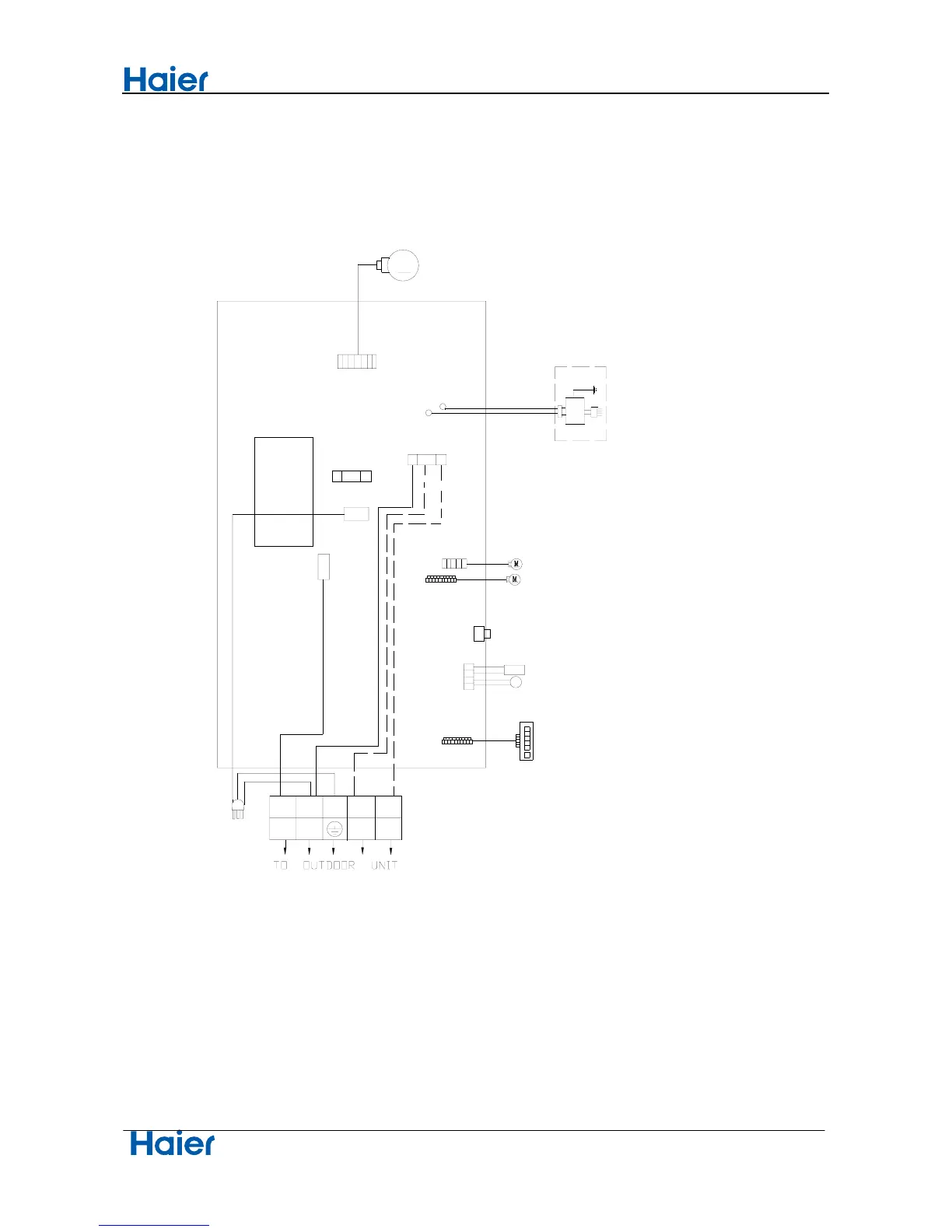
Domestic air conditioner
Wiring Diagrams
Indoor
up-down stepmoter
K1
Y/G
C0N1
C0N3
W
R
DC FAN MOTOR
M
CN23
FUSE1
CN501
left stepmoter
CN31
SW1
CN6
PIPING TEMP SENSOR
CN7
3
4
1(L)
2(N)
W
Y/G
R
B
BR
CN17
BR
BL
Y/G
CN1
T3.15A/250VAC
CN9
@
@
AMBIENT TEMP SENSOR
ION GENERATIOR
EMERGENCY SWITCH
RECEIVER DISPLAY
Connector Wiring diagrams
12
W B

Related product manuals