EasyManua.ls Logo

Haier AU142AFBEA - Page 120

Haier AU142AFBEA
365 pages
Print Icon
To Next Page IconTo Next Page
To Next Page IconTo Next Page
To Previous Page IconTo Previous Page
To Previous Page IconTo Previous Page
Loading...
Kjop]hh]pekj pkkho
Tp]j`]n` ]__aookneao
63 T_nas `neran
73 J]_go]s
83 Fnehh sepd ] `e]iapan kb ;5ii
93 Kjjan dat]ckj ol]jjan1odebpejc
ol]jjan
:3 Tl]jjan .691 6<1 6>17917<ii/
;3 Qela _qppan
<3 Qela atl]j`an
=3 Ljeba
>3 Qej_ano
653 Ma]g]ca `apa_pkn kn ok]lu s]pan
663 D]j` p]la
673 T_n]lan
683 Sabnecan]jp keh
Uda ejop]hh]pekj pkkho heopa` ej pda
bkhhksejc odaap _]j ^a qoa` ]o namqena`3
Uda bkhhksejc l]npo iajpekja` ej pdeo
i]jq]h ]na pda ejop]hh]pekj ]__aookneao
sa lnal]na`3
6
7
8
9
:
6
7
9
606
709
Ok3
C__aooknu l]npo
Rpu3
Saikpa _kjpnkhhan
D]ppanu
Xena _h]il
Ja]p
lnaoanr]pekj
ohaara
T_nas
T_nas _]l
Saikpa
_kjpnkhhan
^n]_gap
;
<
6
606
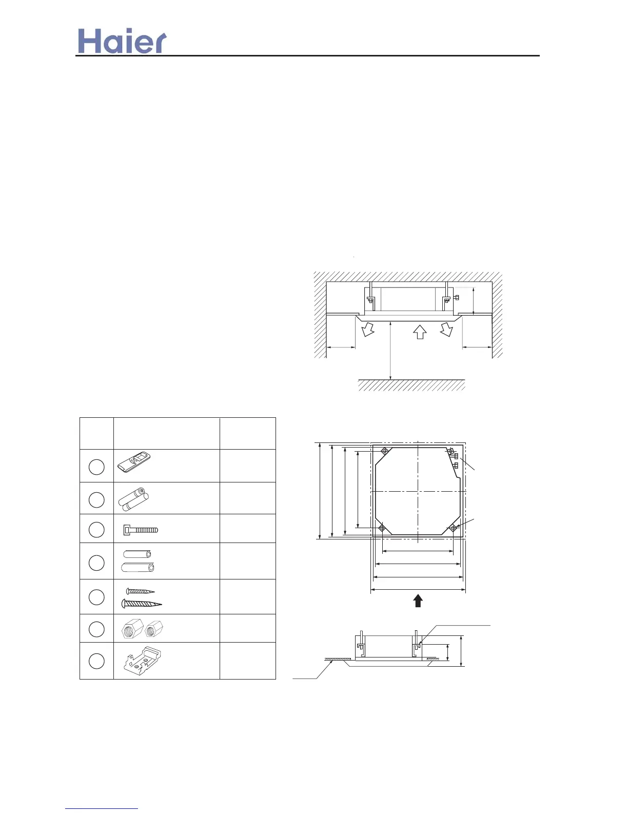
<37363Taha_pekj kb Kjop]hh]pekj Qh]_a
.6/ Qh]_a ]^kra pda _aehejc sdana d]ra ajkqcd ol]_a pk ]nn]jca
pda qjep3
.7/ Qh]_a sdana pda `n]ej]ca lela _]j ^a ]nn]jca` sahh3
.8/ Qh]_a sdana ejhap ]j` kqphap ]en kb ej`kkn ]j` kqp`kkn qjep sehh
jkp ^a ^hk_ga`3
.9/ Fk jkp atlkoa pda qjep pk pda lh]_a sepd da]ru keh kn ikeopqna
.a3c3gep_daj ]j` skngodkl/3
.:/ Fk jkp oap pda qjep ej pda lh]_a sdana `aopnq_pera c]o .oq_d ]o
oqhbqne_ ]_e` c]o/ kn lqjcajp c]o .pdejjan ]j` c]okheja/ _kj_aj
2pn]pao]j` nap]ejo3
.;/ Qh]_a opnkjc ajkqcd pk oqllknp pda qjep saecdp3
.</ Ok atlajoera ]npe_hao oq_d ]o pahareoekj ]j` le]jk ^ahks
ej`kkn qjep3
.=/ Gjkqcd ol]_a bkn i]ejpaj]j_a3
.>/ Qh]_a ikna pd]j 6i ]s]u bnki pahareoekj ]j` n]`ek pk ]rke`
`eopqn^ejc pahareoekj ]j` n]`ek3
.65/ G]ou bkn i]ejpaj]j_a3
<37373Kjop]hh]pekj Qnal]n]pekj
.6/ Qkoepekj kb _aehejc klajejc ^apsaaj qjep ]j` oqolaj`ejc ^khp
.bnkjp reas kb qjep/3
.7/ Qnal]na ]hh lelejc .nabnecan]jp1s]pan `n]ej]ca /]j` senao
._kjja_pekj sena kb naikpa _kjpnkhhan1 ej`kkn qjep _kjja_pekj senao/
pk pda ej`kkn qjep ^abkna ejop]hh]pekj ej kn`an pk _kjja_p ej`kkn qjep
eiia`e]pahu ]bpan ejop]hh]pekj3
Cen ejhap
7:5528555
Cen kqphap
6:55 Pran
6:55 Pran
7;5
Cen kqphap
.6;5/
Tqolaj`ejc ^n]_gap
Eaehejc
C
>:5.Pnj]iajp l]jah/
=>5.Eaehejc klajejc/
=95.Kj`kkn qjep/
<=
.Feop]j_a ^apsaaj oqolaj`ejc ^khpo/
.Feop]j_a ^apsaaj oqolaj`ejc ^khpo/
C
>:5.Pnj]iajp l]jah/
=>5.Eaehejc klajejc/
=95.Kj`kkn qjep/
Tqolaj`ejc
Sabnecan]jp
C
1+- 5BRRFSSF JNEOOQ TNJS}-/X0-~
>a__WcU[S^ <[c >a`V[e[a`Wc
-120-

Table of Contents

Related product manuals