EasyManua.ls Logo

Haier AU142AFBEA - Page 56

Haier AU142AFBEA
365 pages
Print Icon
To Next Page IconTo Next Page
To Next Page IconTo Next Page
To Previous Page IconTo Previous Page
To Previous Page IconTo Previous Page
Loading...
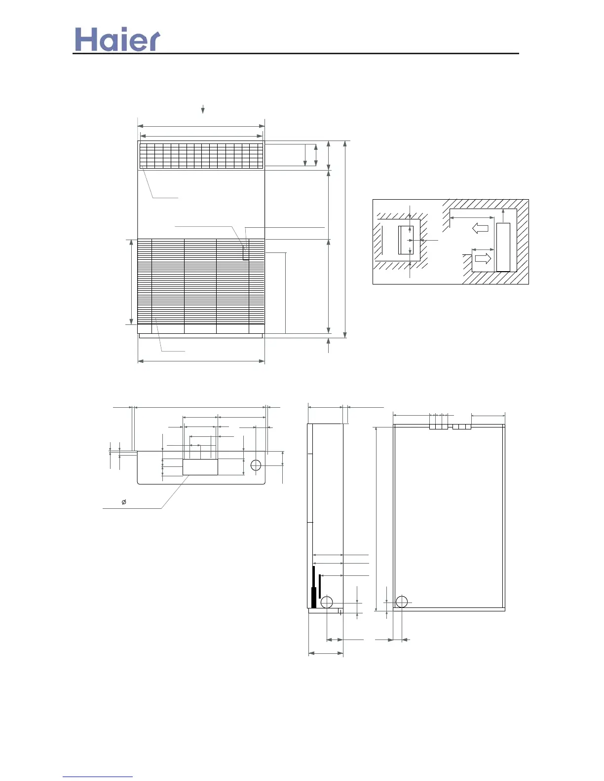
>a__WcU[S^ <[c >a`V[e[a`Wc
Model: AP88 (updated)
100
50
50
50
600
1000
air outlet
air inlet
installation space
liquid side
gas side
drain water
277
272
218
142
78
310
95
98
1828
320
20-50
adjustment range
425 5050 50 425
15
1222.5
315 442
15
82
8
8 300
50200
100
72
19
36
142
150
view A
83
83
8- 4manual tap
80
air inlet
1192.5
813
787.5
40
880
1850
650
179
270
200
105
1148
1200
A
air outlet
power terminal block
terminal block center
terminal block center
(mm)
20-50
-56-

Table of Contents

Related product manuals