EasyManua.ls Logo

Haier HTW 5618CNMG - Blank Page

Haier HTW 5618CNMG
554 pages
To Next Page IconTo Next Page
To Next Page IconTo Next Page
To Previous Page IconTo Previous Page
To Previous Page IconTo Previous Page
Loading...
EN
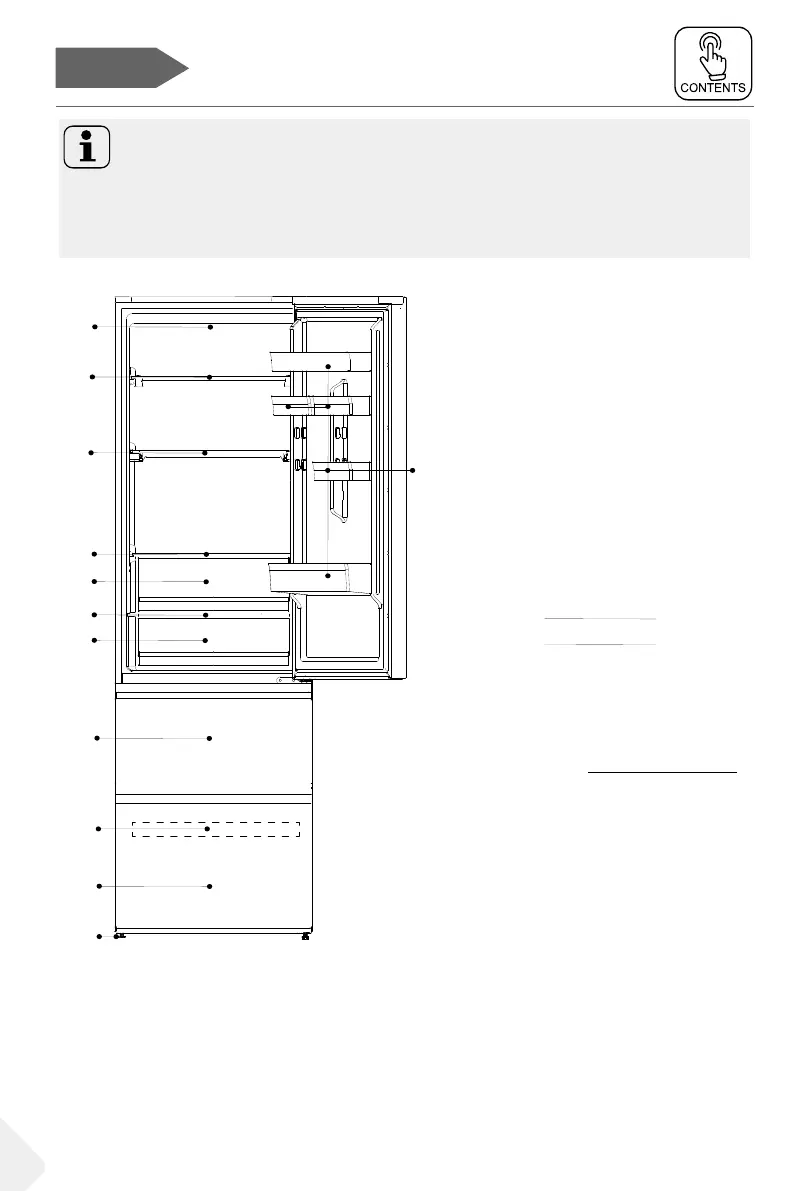
Product description
NOTICE
Due to technical changes and di󱐱erent models, some of the illustrations in
this manual may di󱐱er from model.
(HTW5618DN*, HTW5618CN*, HTW5618EN*)
1-Refrigerator LED lamp
2-Wine rack
3-Foldable shelf
4-Hu4- midity Zone drawer c
5-Humidity Zone drawer
6-My Z ne drawer covero
7-My Zone drawer
Upper freezer storage drawer8-
9-Freeze trayr
10-Lower freezer storage drawer
11-Adjus le feet
bal
tab
12-Door cony
1
5
6
8
10
11
12
2
3
4
9
7
12

Related product manuals