EasyManua.ls Logo

Haier YR-E17A - Page 39

Haier YR-E17A
40 pages
Print Icon
To Next Page IconTo Next Page
To Next Page IconTo Next Page
To Previous Page IconTo Previous Page
To Previous Page IconTo Previous Page
Loading...
38
C
C
A
CON1
B
3
2
1
B
red
yellow
white
A
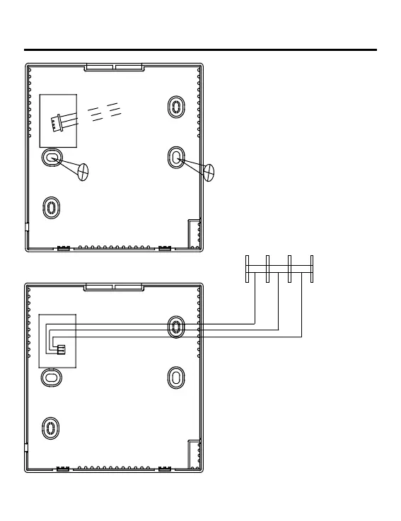
Wired Controller Wiring Instruction

Related product manuals