EasyManua.ls Logo

Haier YR-E20 - Page 37

Haier YR-E20
68 pages
Print Icon
To Next Page IconTo Next Page
To Next Page IconTo Next Page
To Previous Page IconTo Previous Page
To Previous Page IconTo Previous Page
Loading...
36
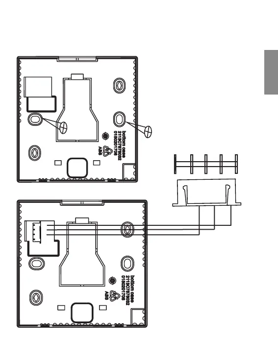
2. Fix the back cover to base box. Then connect the
communication wire to wired controller. Put the front board of
wired controller to back cover. Finish the installation.
D
C
B A
A
B
C
D
A
B
C
Please connect the red terminal
of communication wire to indoor
unit PCB. There is a shielded
wire at the red terminal part,
which should be linked to
indoor unit ground wire.
Wired Controller terminal (white)
yellow
yellow
red
red
green
green

Related product manuals