EasyManua.ls Logo

Handicare 2000 SIMPLICITY - Appendix 5: Inside Track Details

Handicare 2000 SIMPLICITY
364 pages
Print Icon
To Next Page IconTo Next Page
To Next Page IconTo Next Page
To Previous Page IconTo Previous Page
To Previous Page IconTo Previous Page
Loading...
ENGLISH
UP
402
567
137
800
2243
117 490
Back to Knee
line of travel
114
63
WARNING!
No Bulkhead
Dimensions
Given.
No
12116
2199 206
3197 193
4197 200
5195 199
6201 200
7198 200
8204 201
9203 199
10 201200
11 199200
12 200203
13 202201
14 200200
15 198199
16 201202
17 199196
18 200200
19 200202
20 200200
21 203201
22 200200
USER DETAILS
Standing Ht:
1850
mm
Seated Ht:
850
mm
Back To Knee:
600
mm
Seat Height:
485
mm
DRAWING NUMBER:
CONTRACT / CUSTOMER
DRAWN:
DATE:
DO NOT SCALE
This drawing and any information or descriptive matter set out hereon are the confidential and copyright property of HANDICARE LTD.
and must not be disclosed, loaned, copied or used for manufacturing, tendering or any other purpose without their written permission.
ALL DIMENSIONS IN MM UNLESS OTHERWISE STATED
rtc-89955
mark.staniland
26/01/15
Handicare Stairlifts Ltd
REV
COMMENTS
BY
DATE
REFERENCE
R&D Position 5
PG NUMBER:
30122
Hand of Rail:
Rail Colour:
DRAWING NUMBER:
Light Grey
RIGHT
rtc-89955
Track Bolts:
44
Fitting Kit
Joining plugs:
Additional Charge Points
(section/ by stanchion)
Charge Points:
Standard
End Stops:
MK2
Magnets
:
6
Hand Sets:
N/A
Number needed:
0
Stanchion Feet
Standard:
7
Lower:
1
Fan:
5
Wall Brackets
:
0
Heavy Duty Kit:
NO
Wire needed (m):
8
Wood Screws for feet:
39
Stanchion bolts:
26
Located on:
16
Located on:
19,20,21
27,28
Located on:
Seat Type:
Track Only
Build parts/ track format
checked
By:
Swivel Bracket:
NO
Brace Bar
:
1
UnderFloor Lower
:
0
UnderFloor Standard
:
0
Parts for Build
Product type:
RTC-2000
Riser
Height
Left
Riser
Height
Right
UP
16
17
18
19
20
21
22 2324
25 26
27
28
15
14
13
1211109
8
7
6
5
4
3
2
General Table
rtc-89955 TRACK DETAILS
W
S
No.
SG
Joins
Teeth
TYPE
LENGTH
SB
No.
UF
RAIL
TOOTH
DISTANCE
LENGTH
TYPE
SETTING
HT
1
GROUND FLOOR
16 21 11 395
A
74
A
2
B-W
28
S
308 17 224 264 470
A
149
3
W-W
48
HR17
R159
N
18 44 649
B
127
4
F
W-X
37
GI R596
19 526 286 693
C
171
5
L
X-C
44
S
484 20 65 55 697
C
175
B
6
C-W
10
S
110 21 741 708
C
186
7
W-W
54
HR54
R223
N
22 916 176 649
B
127
8
F
W-X
13
GD R665
23 973 803 661
C
139
9
L
X-C
158
S
1737 24 9 129 1418 662
C
140
C
10
F
C-X
12
S
132 25 12 666 709
C
187
11
L
X-W
13
GI R596
26 12 48 528 884
D
31
12
W-W
70
S
770 27 14 15 685
C
163
13
W-W
54
HR54
R223
N
28 15 14 154 620
B
98
14
F
W-X
24
GD R665
TOTAL =
8482
15
L
X-B
15
S
165
TOTAL =
6377
DRAWING NUMBER:
CONTRACT / CUSTOMER
DRAWN:
DATE:
DO NOT SCALE
This drawing and any information or descriptive matter set out hereon are the confidential and copyright property of HANDICARE LTD.
and must not be disclosed, loaned, copied or used for manufacturing, tendering or any other purpose without their written permission.
ALL DIMENSIONS IN MM UNLESS OTHERWISE STATED
rtc-89955
mark.staniland
26/01/15
Handicare Stairlifts Ltd
REV
COMMENTS
BY
DATE
REFERENCE
R&D Position 5
PG NUMBER:
30122
BY:
Track Checked
Date:
BY:
BY:
BY:
Track Assembled
Marked + Checked M/C SHOP
MARKED FOR WELD
A
1st Issue
Hand of Rail:
Rail Colour:
DRAWING NUMBER:
Light Grey
RIGHT
rtc-89955
Track Bolts:
44
Fitting Kit
Joining plugs:
Additional Charge Points
(section/ by stanchion)
Charge Points:
Standard
End Stops:
MK2
Magnets
:
6
Hand Sets:
N/A
Number needed:
0
Stanchion Feet
Standard:
7
Lower:
1
Fan:
5
Wall Brackets
:
0
Heavy Duty Kit:
NO
Wire needed (m):
8
Wood Screws for feet:
39
Stanchion bolts:
26
Located on:
16
Located on:
19,20,21
27,28
Located on:
Seat Type:
Track Only
Build parts/ track format
checked
By:
Swivel Bracket:
NO
Brace Bar
:
1
UnderFloor Lower
:
0
UnderFloor Standard
:
0
Parts for Build
Product type:
RTC-2000
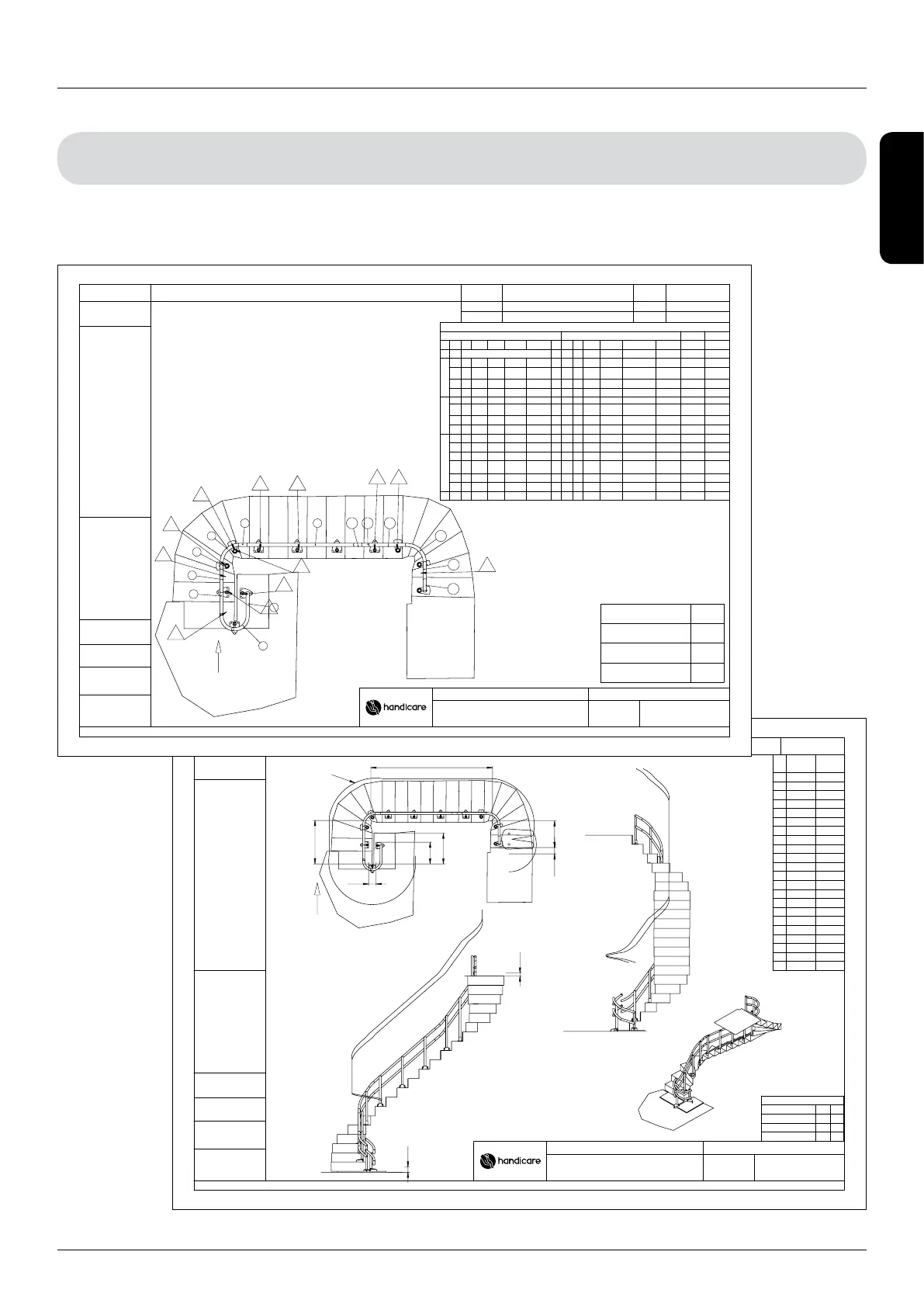
Inside track details
HANDICARE 2000 SIMPLICITY / STYLE INSTALLATION MANUAL 61
Appendix 5

Related product manuals