EasyManua.ls Logo

Harvia K13 - Page 17

Harvia K13
18 pages
Print Icon
To Next Page IconTo Next Page
To Next Page IconTo Next Page
To Previous Page IconTo Previous Page
To Previous Page IconTo Previous Page
Loading...
EN DE
17
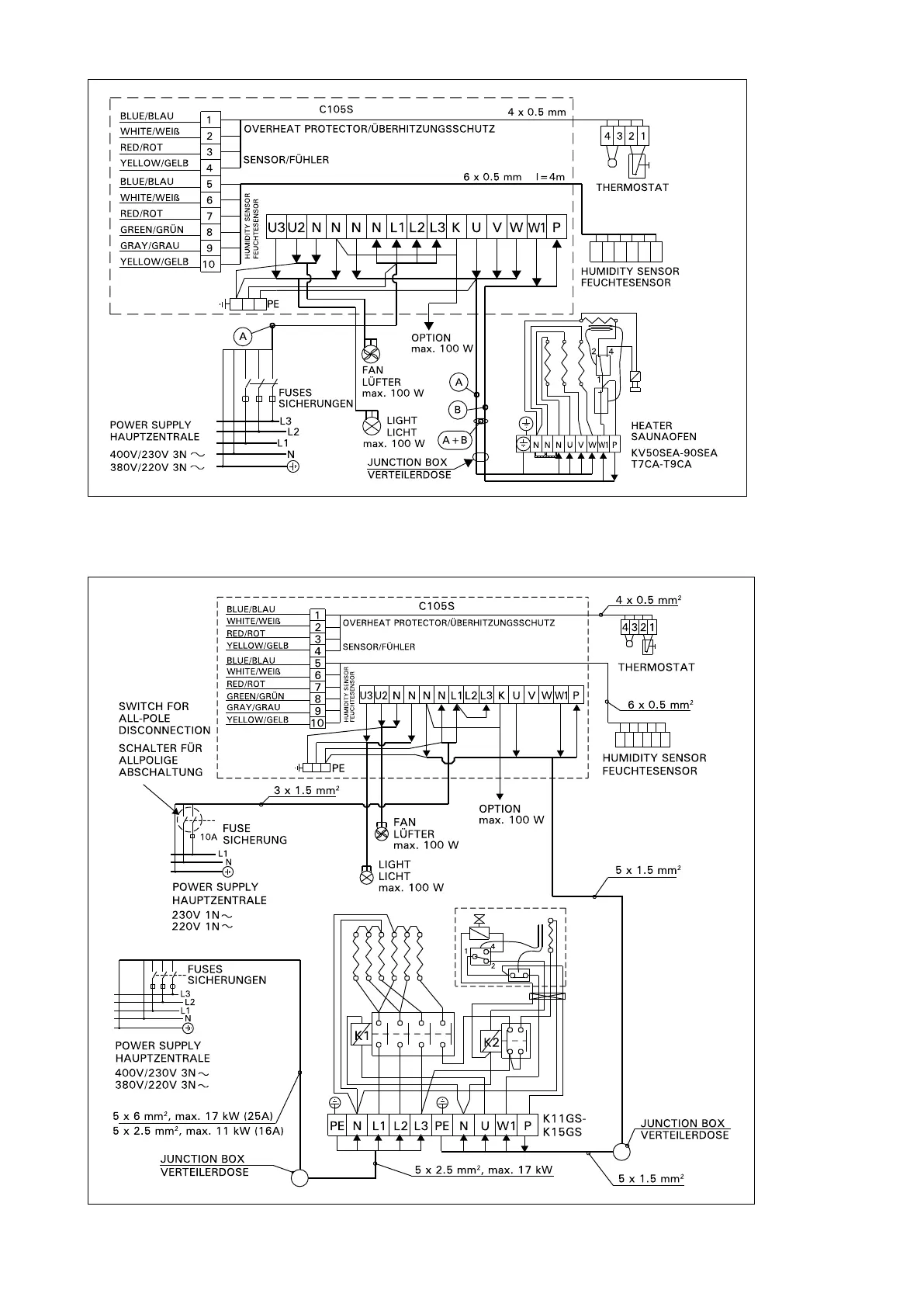
Figure 12. 3-phase connection of the heater and automatic filling
Abbildung 12. 3-Phase Anschluß des Saunaofens und Automatische Wasserbefüllung
Figure 13. 3-phase connection of the K-GS heater
Abbildung 13. 3-Phase Anschluß des K-GS Saunaofens

Table of Contents

Related product manuals