EasyManua.ls Logo

Helo WE 14 - Page 4

Helo WE 14
Print Icon
To Next Page IconTo Next Page
To Next Page IconTo Next Page
To Previous Page IconTo Previous Page
To Previous Page IconTo Previous Page
Loading...
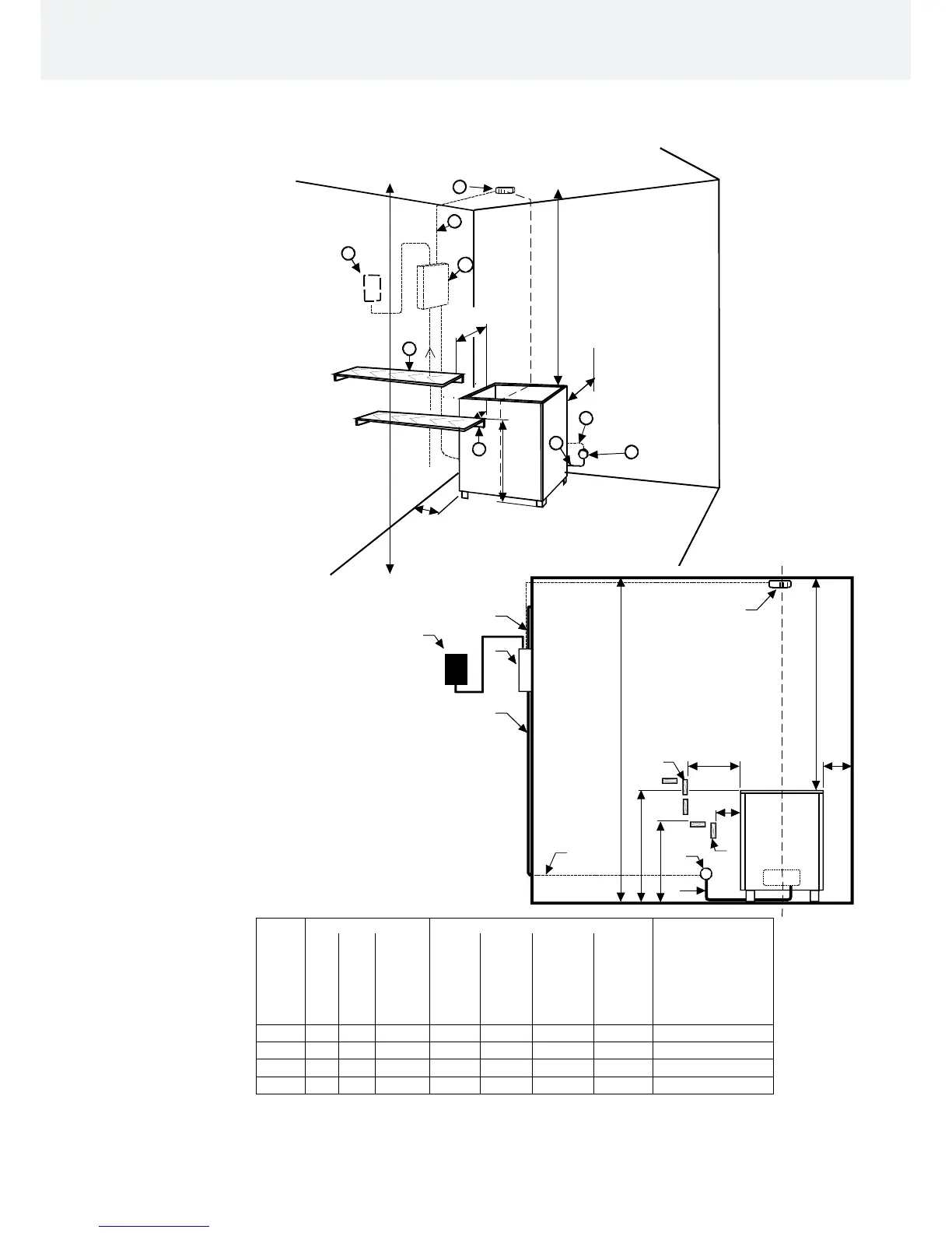
1. Suojaetäisyydet 1105 – XX kiukaille (SKLE / Laava)
Kuva 1. Suojaetäisyydet SKLE / Laava
Teho
kW
Saunhuone Suojaetäisyydet minimi
Sopiva kivimäärä
n. kg
Min. Max.
Minimi-
korkeus
Sivuilla Edessä Kattoon
Taka
seinä
m
3
m
3
H
A
mm
D
mm
F
mm
C
mm
mm
9,0 8 13 1900 80 80 1200
110
60
10,5 9 15 1900 80 80 1200
110
60
12,0 10 18 2100 120 120 1400
120
60
15,0 14 24 2100 120 120 1400
120
60
Taulukko 1 Suojaetäisyydet
Käyttö- ja asennusohje WE 14
3
1 Kontaktorikotelo WE 14
2. Tuntoelin OLET 28
3. Lämmönkestävä kaapeli tuntoelimelle
4. Syöttökaapeli kiukaaseen
5. Liitäntärasia
6. Liitäntäkaapeli kiukaaseen
7. Alalaude tai kaide
8. Ylälaude tai kaide
9. Ohjauskeskus T2
HUOM! Tuntoelin asennetaan
kattoon keskikohtaan kiukaasta
mitat. mm
H min
m
i
n
D
F min
7
3
2
1
min
50
max
500
m
i
n
A
5
6
4
8
9
C
2
3
1
6
8 A A
4
50
5
6
min
7
H min
700
max 500
B min
9

Related product manuals