EasyManua.ls Logo

Helo WE 14 - Page 6

Helo WE 14
Print Icon
To Next Page IconTo Next Page
To Next Page IconTo Next Page
To Previous Page IconTo Previous Page
To Previous Page IconTo Previous Page
Loading...
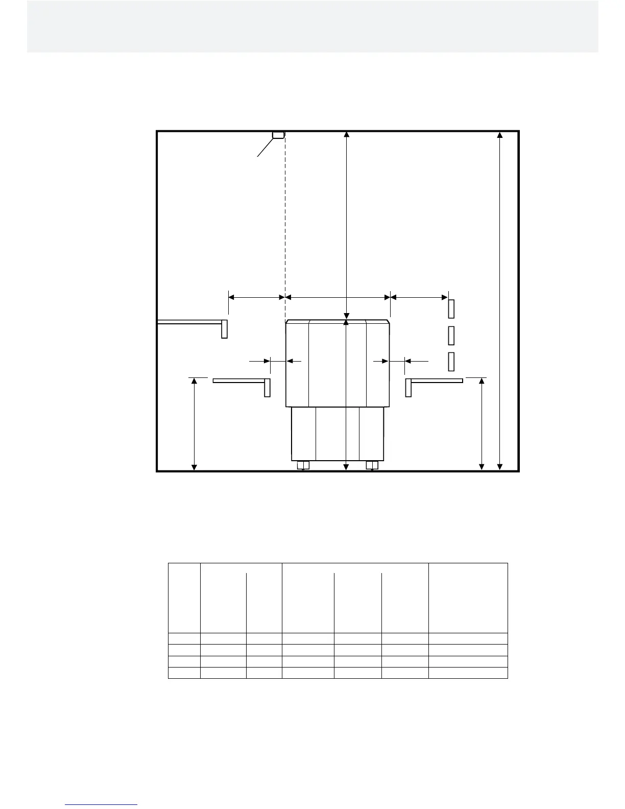
3. Suojaetäisyydet 1106 – XX (SKLF / Octa)
A min 560 D min
10 10
max
500
max
500
min
H
min
F
760
Kuva 3 Suojaetäisyydet SKLF / Octa - Kiukaalle
Teho
kW
Saunhuone Suojaetäisyydet minimi Sopiva kivimäärä
n. kg
Tilavuus
Minimi-
korkeus
Sivuilla Edessä Kattoon
m
3
H
A
mm
D
mm
F
mm
mm
9,0 8 - 13 1900 25 25 1150 60
10,5 9 - 15 1900 25 25 1150 60
12,0 10 - 18 2100 65 65 1350 60
15,0 14 - 24 2100 65 65 1350 60
Taulukko 3 Suojaetäisyydet
Käyttö- ja asennusohje WE 14
5
Tuntoelin OLET 28

Related product manuals