EasyManua.ls Logo

Hisense HYJM-S01H - Elevating Grille Group Setting and Cancellation

Hisense HYJM-S01H
229 pages
Print Icon
To Next Page IconTo Next Page
To Next Page IconTo Next Page
To Previous Page IconTo Previous Page
To Previous Page IconTo Previous Page
Loading...
Elevating Grille Group Setting and Cancellation
6.
Display Following Elevating Grille Group Setting Procedure
A/C
Notes
FAN
A/C
FAN
Group setting of the elevating grille refers to a function that allows all settings for the elevating grille(setting of elevating functions for input 2 and outputs 1 and 2) to be made
all at once for all indoor units connected to the remote control switch.Setting are made by following the procedure as follows.
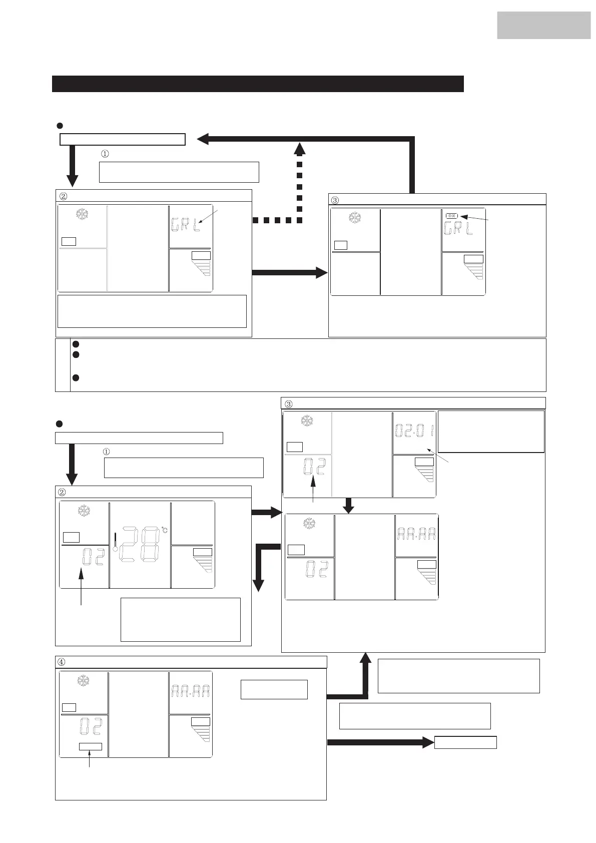
Elevating Grille Group Setting Procedure
Normal mode (when unit is not operating)
Switch to the elevating grille group setting mode.
Press the “CHECK” switch and the ”RESET”
switch simultaneously for more than 3 seconds.
Elevating grille Group Setting Procedure
"GRL" is
displayed.
Press the "RUN/STOP" switch when making group
settings. (Press the "RESET" switch to return to the
normal mode without making group settings.)
"SET" flashes
for 3 seconds.
The elevating grille settings are made for all indoor units
connected to the remote control switch. "SET" flashes for 3
seconds after settings have been made, and then automatically
returns to the normal mode.
In case of using by two remote control switches (Master and Slave), the settings shall be operated by the master controller.
Group settings are made to all indoor units connected to the remote control switch regardless of whether or not these are actually
provided with the elevating grille.
The indoor unit to be set cannot be selected. (In this case, refer to section 5, "Optional Setting
and Input/Output Setting from Remote Control Switch".)
Please note that when functions other than the elevating grille have been set for input 2 and output 1 and 2, those settings are
cleared (namely, there are overwritten by the elevating grille function).
"RESET"
Switch
"RUN/STOP"
Switch
Elevating Grille Group Cancellation Procedure
SERV
ADDS
RNkHR
SERV
SERV
RNkHR
A/C
FAN
A/C
A/C
FAN
FAN
ADDS
Elevating grille settings can be canceled all at once
by following the procedure as follows.
Normal mode (when unit is not operating)
Change to the optional setting mode.
Press the “CHECK” switch and the ”RESET”
switch simultaneously for more than 3 seconds.
Select the input/output setting mode.
“SERV.” is
indicated and the
mode number is
flashed.
Press the "TEMP." or switch,
select "02" for the input/output
setting mode, and then press the
"CHECK" switch.
Select the unit to be set.
Press the "TEMP." or switch,
select the address of the indoor
unit to be set and then press the
"CHECK" switch.
"02" Indicates.
number of the indoor unit to be
set are displayed (the diagram at
No. 2 indoor unit).
All units are
displayed at once when "AA" is
set for both the refrigerant cycle
number and address.
The address and refrigerant cycle
left shows the No.1 cycle and the
Example: Display in case of
group cancellation of all units.
press
[ GRILL ]
NO FUNCTION
A/C
SERV.
FAN
ADDS
RNkHR
Group cancellation procedure
"NO FUNCTION" flashes for 2
seconds
The elevating grille settings for the selected
units are canceled all at once and input
1 and output 1 and 2 are returned to the
factory settings. "NO FUNCTION" flashes
for 2 seconds following this procedure.
Press the "RESET" switch to cancel the
cancellation procedure.
When canceling elevating grille settings for
other units, repeat selection of the indoor units
by pressing the "TEMP." or switch.
Normal mode
switch.
HYXE-F01H
23

Table of Contents

Related product manuals