EasyManua.ls Logo

HITROL HTMF-MF - HTMF-Duct Type Installation Procedure

HITROL HTMF-MF
12 pages
Print Icon
To Next Page IconTo Next Page
To Next Page IconTo Next Page
To Previous Page IconTo Previous Page
To Previous Page IconTo Previous Page
Loading...
Page. 11 / 12
Doc. no. : HTMF_Kor_2016, Rev. 0
Issued date : 2016. 11
HITROL Co., Ltd
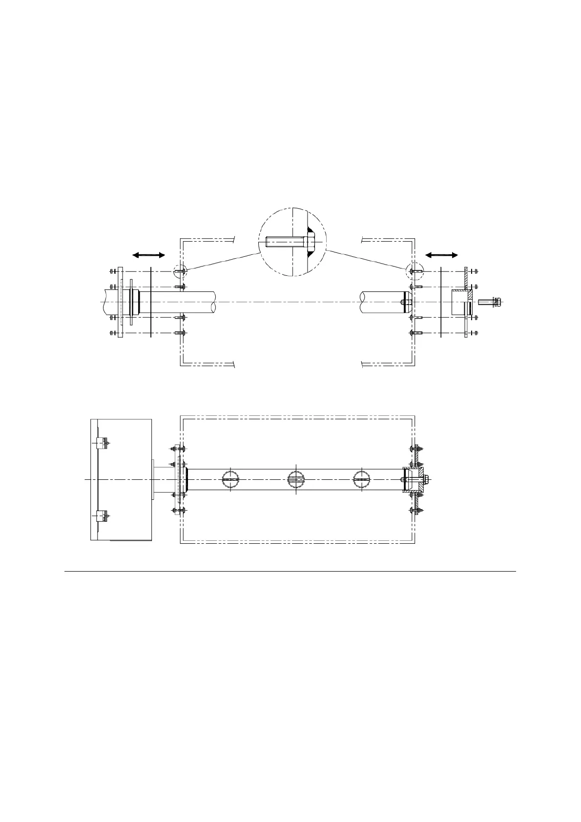
7.2 Installation method of HTMF-Duct Type
7.2.1 Weld the bolt to the duct before inserting the product. (See Figure 4 below)
7.2.2 After inserting the product, fasten it with bolts and nuts.
7.2.3 Insert the product into the lower part with mounting hardware and fasten the bolts and
nuts to the duct.
7.2.4 In case of separation, perform the above method in reverse order.
<Figure 4>

Related product manuals