EasyManua.ls Logo

Hkoenig AGE8 - Product Description and Technical Specifications

Hkoenig AGE8
81 pages
Print Icon
To Next Page IconTo Next Page
To Next Page IconTo Next Page
To Previous Page IconTo Previous Page
To Previous Page IconTo Previous Page
Loading...
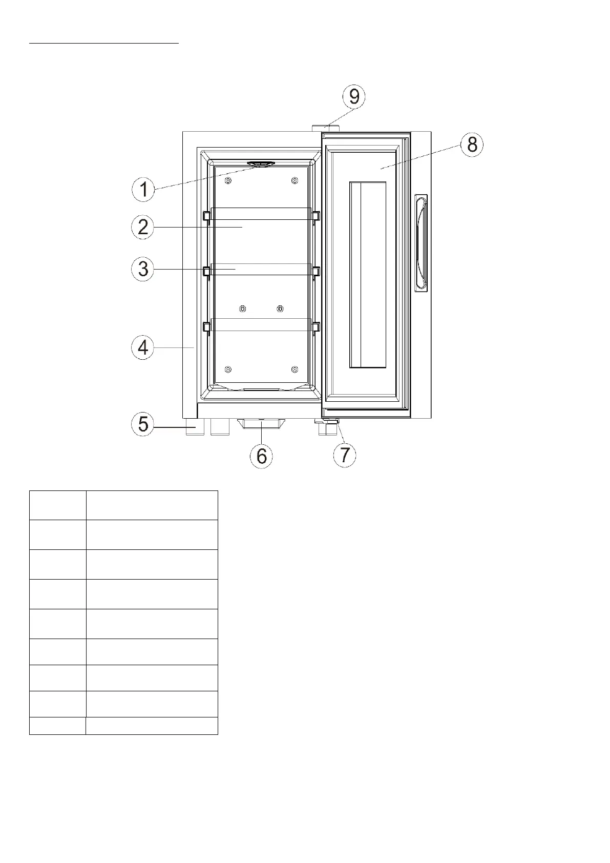
PRODUCT DESCRIPTION
1
Light
2
Cold Plate
3
Shelf
4
Cabinet
5
Feet
6
Water tray
7
Hinge stopper
8
Door
9
Hinge cover

Related product manuals