EasyManua.ls Logo

Honeywell MP953E

Honeywell MP953E
24 pages
To Next Page IconTo Next Page
To Next Page IconTo Next Page
To Previous Page IconTo Previous Page
To Previous Page IconTo Previous Page
Loading...
POSITIONER RETROFIT AND
SPRING KITS
Table 12.
MP953
Positive Positioner Retrofit Kits.
Part No.
1
Description*
14004138-001 For RA valve actuators (Fig 12)
14004139-001 For
8-
and 13-in.
(203-
and 330-mm),
1
3/4-in.
(19-mm)
stroke valve
actuators (Fig. 13)
14004140-001 For
8-
and 13-in.
(203-
and 330-mm),
1
l-1/2
in. (38-mm) stroke valve
actuators (Fig. 14)
14004214-001 For 5-in.
(127-mm),
3/4-in.
(19-mm)
stroke valve actuators (Fig. 13).
I
(Positioner has cream-colored lower
plate.)
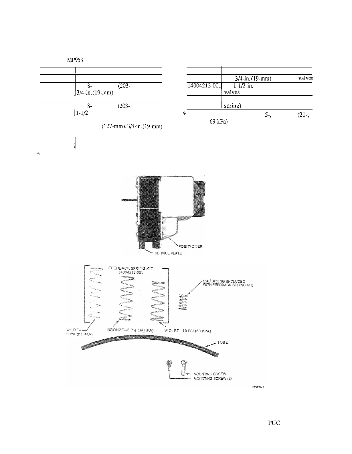
Table 13. MP953 Feedback Spring Kits.
Part No.
Description*
1400421 l-001 For
3/4-in.
(19-mm)
stroke DA
vahs
14004212-001~
For
l-l/&in.
(38-mm) stroke DA
14004213-001
I
* All kits include springs with 3-,
5,
and lo-psi
(21-,
For RA valve actuators (includes bias
34-, and
69-kPa)
range.
spfiw~
*
Includes corresponding feedback spring kit listed in
Table 13.
Fig. 12. Positive Positioner Retrofit Kit 14004138-001.
19
PUC
9-90 75-5500

Related product manuals