EasyManua.ls Logo

Honeywell SDC 7-21 - Page 79

Honeywell SDC 7-21
92 pages
Print Icon
To Next Page IconTo Next Page
To Next Page IconTo Next Page
To Previous Page IconTo Previous Page
To Previous Page IconTo Previous Page
Loading...
SDC Εφαρμογές τηλεθέρμανσης / District heating applications
MU1H-0438GE51 R0313 79
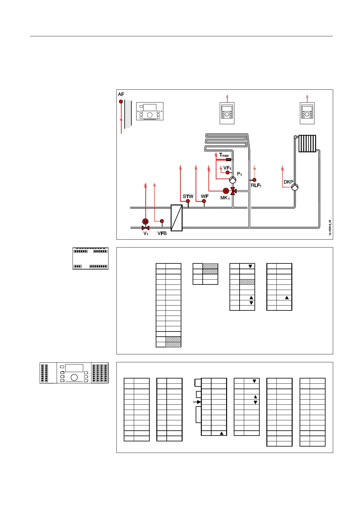
11.7 Υδραυλικό σύστημα 0506 (SDC 7-21 / SDC 9-21, τρόπος
λειτουργίας DHC)
Hydraulics 0506 (SDC 7-21 / SDC 9-21, DHC mode)
X 1 X 2 X 3 X 4
23 GND 19 1 V 1 10
24 BUS A 20 2 L 1 11
25 BUS B 21 N 3 DKP 12
26 AF 22 L 1 4 13
27 WF 5 14
28 6 L 1 15
29 VF 1 7 MK1 16 V 1
30 RLF 1 8 MK1 17
31 9 P 1 18 L 1
32 VFB
33
34
35
36
37
38
X 5 X 6 X 7 X 8 X 9 X 10
1 Bus B 1 Bus A 1 1 V 1 1 N 1 PE
2 GND 2 AF 2 2 DKP 2 N 2 PE
3 GND 3 WF 3 3 3 N 3 PE
4 GND 4 4 4 MK1 4 N 4 PE
5 GND 5 VF 1 5 L 1 5 MK1 5 N 5 PE
6 GND 6 RLF 1 6 6 P 1 6 N 6 PE
7 GND 7 7 7 7 N 7 PE
8 GND 8 VFB 8 8 8 N 8 PE
9 GND 9 9 9 9 N 9 PE
10 GND 10 10 10 10 N 10 PE
11 GND 11 11 V 1 11 11 N 11 PE
12 GND 12 12 N 12 PE
13 N 13 PE
Pos: 39 /156-Honeywell/ Montage/050 7/SDC7-21 @ 1\mod_120765 3218025_2 58.doc @ 105 30
X1X2
X4
X3

Table of Contents

Related product manuals