EasyManua.ls Logo

Hoonved ED 650 E - Overall Dimensions

Hoonved ED 650 E
18 pages
Print Icon
To Next Page IconTo Next Page
To Next Page IconTo Next Page
To Previous Page IconTo Previous Page
To Previous Page IconTo Previous Page
Loading...
6
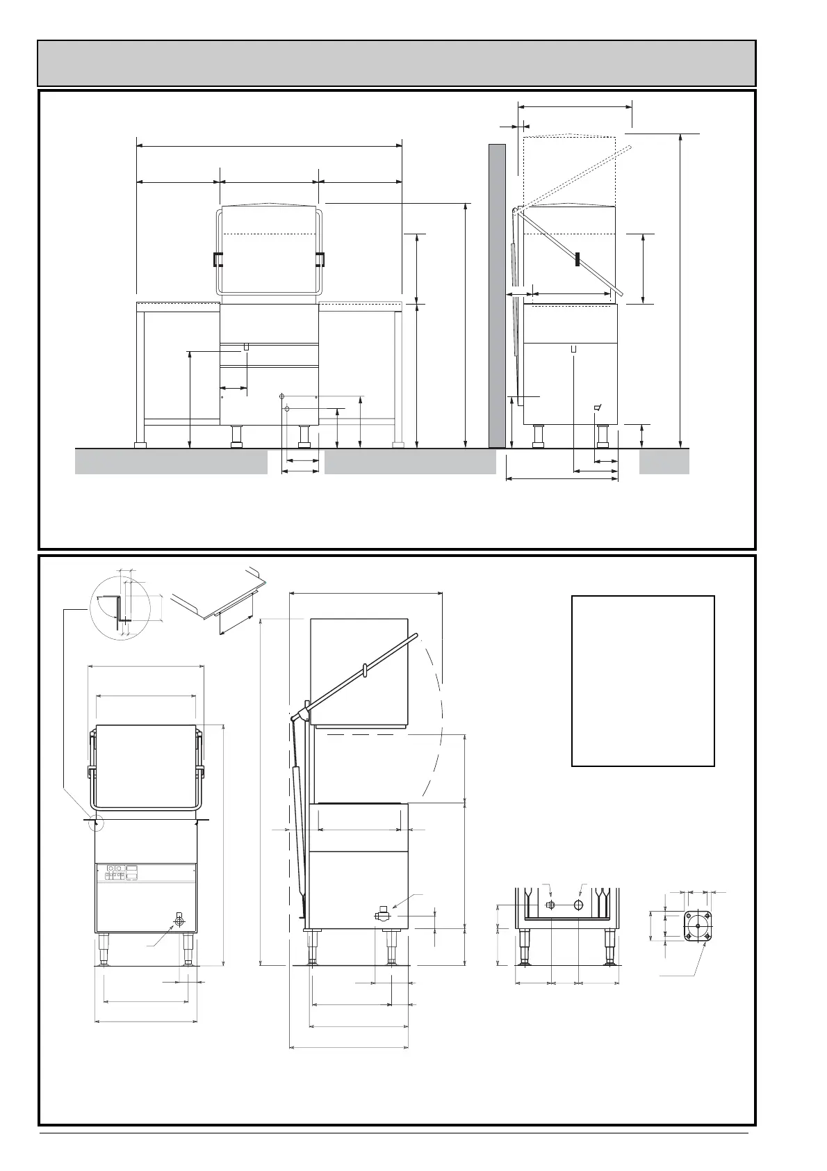
ED 650 E/S - CA 90/120
DIMENSIONI DI INGOMBRO - OVERALL DIMENSIONS - DIMENSIONS D'ENCOMBREMENT
PLATZBEDARFSMASSE - DIMENSIÓNES
B
905
1860÷1890
380
150÷180
725
255
A
140
95
165
505
1420÷1450
850
600
600
1825
380
220
470
160
200
320
220
320
625
B
C
A
C
B
A:
Raccordo di Scarico - Drain pipe fitting - Raccord de vidange - Abwasseranschluß - Enlace de descarga
B:
Entrata dell'acqua - Water inlet - Entrée de l'eau- Wasseranschluß - Alimentacìon idrica
C:
Allacciamento elettrico - Electric supply - Raccordement électrique - Stromversorgung - Alimentacìon Electrica
*
A:
Entrata dell'acqua - Water inlet - Entrée de l'eau- Wasseranschluß - Alimentacìon idrica
B:
Raccordo di Scarico - Drain pipe fitting - Raccord de vidange - Abwasseranschluß - Enlace de descarga
C:
Allacciamento elettrico - Electric supply - Raccordement électrique - Stromversorgung - Alimentacìon Electrica
720
930
100
500175 45
380
600
1870 ÷1925
145
÷
200
481
700
200
70
165
246
217
132
C
B
12.5 12.557
57 12.512.5
82
FORI Ø 10
145 ÷ 200
A
h.utile
400
27
13
Ø 7
90
°
7
610
710
628
518
110
A
1420 ÷ 1475
Versione Nave
Marine Version
Version Naval
Schiffsversion
Version Naval

Related product manuals