EasyManua.ls Logo

Hoonved LB 56 BT - Page 12

Hoonved LB 56 BT
Print Icon
To Next Page IconTo Next Page
To Next Page IconTo Next Page
To Previous Page IconTo Previous Page
To Previous Page IconTo Previous Page
Loading...
12
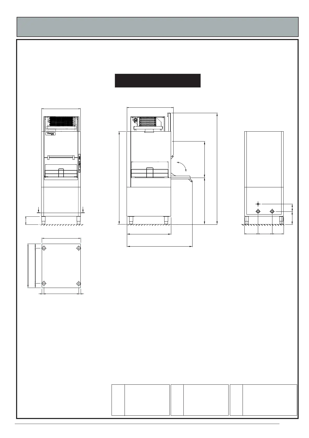
DIMENSIONI DI INGOMBRO - OVERALL DIMENSIONS - DIMENSIONS D’ENCOMBREMENT
PLATZBEDARFSMASSE - DIMENSIÓNES
Allacciamento idrico
Water inlet
Entreé de l’eau
Wasseranschluß
Alimentacion idrica
Allacciamento elettrico
Electric supply
Raccordement électrique
Stromversorgung
Alimentacion electrica
B
C
Raccordo di scarico
Drain pipe tting
Raccord de vidange
Abwasseranschluß
Enlace de descarga
A
HD 40 BT / LB 56 BT RCC
R
40HD BT
720
CYCLE
CHECK
C°
A
A
150
÷ 180
sez.
A-A
80
81
645
806
720
650
35
35
1712
÷ 1742
858
2050
÷ 2080
860
÷ 890
670
814
1208
B A
C
135
250
260
210
240
÷ 270
550 int.
670 int.

Related product manuals