EasyManua.ls Logo

Hoval CT plus 520 - Recommended Secondary Systems

Hoval CT plus 520
22 pages
Print Icon
To Next Page IconTo Next Page
To Next Page IconTo Next Page
To Previous Page IconTo Previous Page
To Previous Page IconTo Previous Page
Loading...
8
Installation and Piping Layouts
8
Recommended Primary Systems Continued.
Installation and Piping Layouts
C
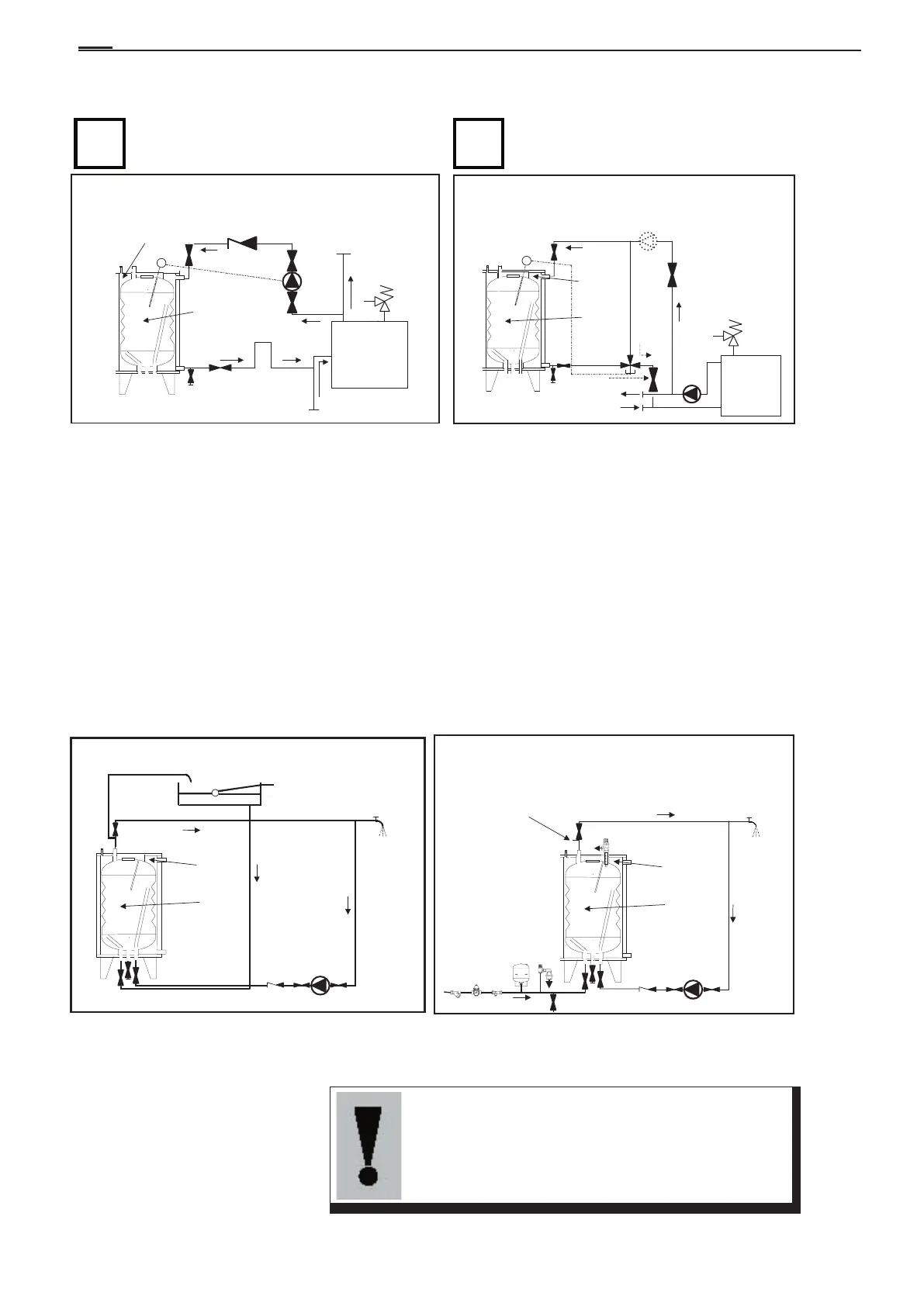
Key
(1) Safety Valve recommended if not
on adjacent boiler or system.
(2) Spring loaded non-return valve.
(3) Isolating valves.
(4) Primary pump (For diagram “D”
the main circulating pump may be
used if sufficient head is available).
(5) Thermostat (linked to primary
pump to control calorifier DHW tem-
perature, diagram C). For diagram
D the thermostat controls the divert-
ing valve.
On Unventedsystems there is also
a limit stat fitted.
(6) Drain cock.
(7) Diverting valve (use 30 second
motor).
D
Recommended Secondary Systems.
Key
(1) Relief valve adjacent to calorifier.
(2) Spring loaded non-return valve.
1
AAV
2
3
4
5
3
3
6
Primary Connections direct from boiler.
Temperature control by pump.
Primary
Water
Secondary
Water
Flow
Return
Boiler
Anti-thermal
loo
p
3
1
AAV
5
4 (if Required)
6
Primary Connections direct from boiler.
Temperature control by diverting valve.
3
7
Primary
Water
Secondary
Water
Return
3
Flow
Boiler
3
3
Boiler
AAV
Secondary Connections OPEN VENTED.
Primary
Water
Secondary
Water
1
2 3
3
3 3
6
Vent
Cold
Feed
Secondary
Return
3
1
4
Manual
Vent
Valve
T & P Relief Valve
Secondary Connections UNVENTED.
Primary
Water
Secondary
Water
2 3
3
3
3
6
Cold
Feed
Secondary
Return
3
5
Note: On CT plus 180 calorifiers the sec-
ondary return and cold feed connections
are at the top. The cold feed should be
taken to a low level thermal syphon to
avoid thermal circulation up the cold feed.
(3) Isolating valves.
(4) Open vent.
(5) Unvented system kit.
(6) Secondary drain valve.
Recommended Primary Systems Continued.
Key
(1) Safety Valve recommended if not
on adjacent boiler or system.
(2) Spring loaded non-return valve.
(3) Isolating valves.
(4) Primary pump (For diagram “D”
the main circulating pump may be
used if sufficient head is available).
(5) Thermostat (linked to primary
pump to control calorifier DHW
temperature, diagram C). For
diagram D the thermostat controls
the diverting valve.
(6) Drain cock
(7) Diverting valve (use 30 second
motor).
Recommended Secondary Systems.
Key
(1) Relief valve adjacent to calorifier.
(2) Spring loaded non-return valve.
Note: On CT plus 180 calorifiers the secondary
return and cold feed connections are at the top.
The cold feed should be taken to a low level
thermal syphon to avoid thermal circulation up
the cold feed.
(3) Isolating valves.
(4) Open vent.
(5) Unvented system kit.
(6) Secondary drain valve.
8
Recommended Primary Systems Continued.
Installation and Piping Layouts
C
Key
(1) Safety Valve recommended if not
on adjacent boiler or system.
(2) Spring loaded non-return valve.
(3) Isolating valves.
(4) Primary pump (For diagram “D”
the main circulating pump may be
used if sufficient head is available).
(5) Thermostat (linked to primary
pump to control calorifier DHW tem-
perature, diagram C). For diagram
D the thermostat controls the divert-
ing valve.
On Unventedsystems there is also
a limit stat fitted.
(6) Drain cock.
(7) Diverting valve (use 30 second
motor).
D
Recommended Secondary Systems.
Key
(1) Relief valve adjacent to calorifier.
(2) Spring loaded non-return valve.
1
AAV
2
3
4
5
3
3
6
Primary Connections direct from boiler.
Temperature control by pump.
Primary
Water
Secondary
Water
Flow
Return
Boiler
Anti-thermal
loo
p
3
1
AAV
5
4 (if Required)
6
Primary Connections direct from boiler.
Temperature control by diverting valve.
3
7
Primary
Water
Secondary
Water
Return
3
Flow
Boiler
3
3
Boiler
AAV
Secondary Connections OPEN VENTED.
Primary
Water
Secondary
Water
1
2 3
3
3 3
6
Vent
Cold
Feed
Secondary
Return
3
1
4
Manual
Vent
Valve
T & P Relief Valve
Secondary Connections UNVENTED.
Primary
Water
Secondary
Water
2 3
3
3
3
6
Cold
Feed
Secondary
Return
3
5
Note: On CT plus 180 calorifiers the sec-
ondary return and cold feed connections
are at the top. The cold feed should be
taken to a low level thermal syphon to
avoid thermal circulation up the cold feed.
(3) Isolating valves.
(4) Open vent.
(5) Unvented system kit.
(6) Secondary drain valve.
3
5
2
Note:
On Unvented systems there is a high
temperature limit thermostat fitted.
The installer should wire this back
to the control valve / primary pump
and also a 2 port motorized valve.
This should be fitted on the primary
inlet, to stop the flow of primary water
entering the calorifier in the event of
a high temperature condition.

Related product manuals