EasyManua.ls Logo

HP LaserJet 6P - Page 177

HP LaserJet 6P
214 pages
To Next Page IconTo Next Page
To Next Page IconTo Next Page
To Previous Page IconTo Previous Page
To Previous Page IconTo Previous Page
Loading...
Tray 2 Paper Out
Sensor PS2
AA
Winding Paper
Sensor PS4
Input Paper
Sensor PS1
Tray 1 Paper Out
Sensor PS5
Tray 1
Inter-connect
PCA
Tray 1 Pickup Assembly
Exit Paper
Sensor PS3
Tray 2 Solenoid
SL1
J101
VR301
Registration
Adjust
J301
J302
Solenoid
SL2
J402
J404
J403
J401
J207
Infrared
Sensor
SW201
J202
SW301
Engine Test
J204
J103
FU201
FU101
AC Power
Supply Circuitry
DC Power
Supply Circuitry
High Voltage
Power Supply
Circuitry
TO FRONT OF PRINTER
J201
J601
AA
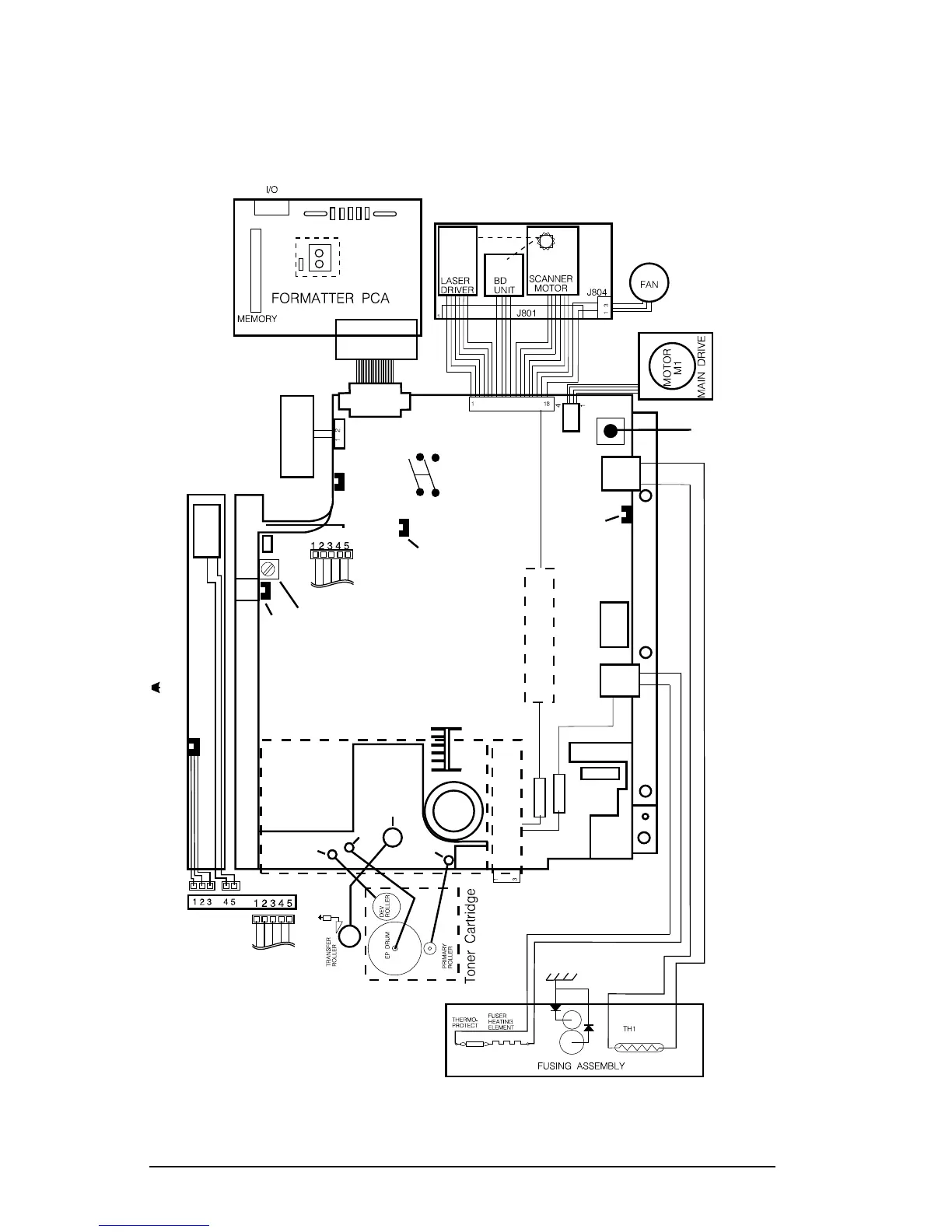
Figure 31 Main Wiring Diagram
HP LaserJet 5P/5MP, 6P/6MP Printer Service Supplement
Troubleshooting
74

Related product manuals