EasyManua.ls Logo

IBM Power 750 Express 8233-E8B - Page 112

IBM Power 750 Express 8233-E8B
336 pages
To Next Page IconTo Next Page
To Next Page IconTo Next Page
To Previous Page IconTo Previous Page
To Previous Page IconTo Previous Page
Loading...
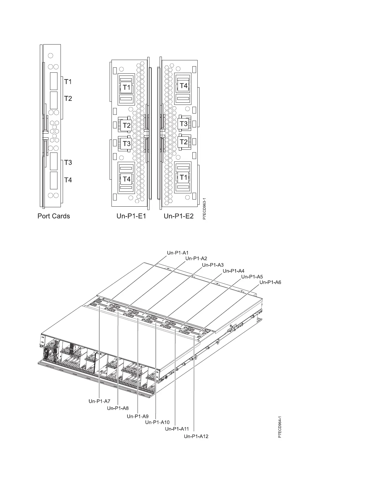
Figure 45. Bulk power assembly (BPA) connector locations
Figure 46. Bulk power fan (BPF) locations
100 Finding parts, locations, and addresses

Table of Contents

Related product manuals