EasyManua.ls Logo

IDW G-10 - G-10 f Electrical Wiring Diagram

IDW G-10
20 pages
Print Icon
To Next Page IconTo Next Page
To Next Page IconTo Next Page
To Previous Page IconTo Previous Page
To Previous Page IconTo Previous Page
Loading...
Instruction Manual
15
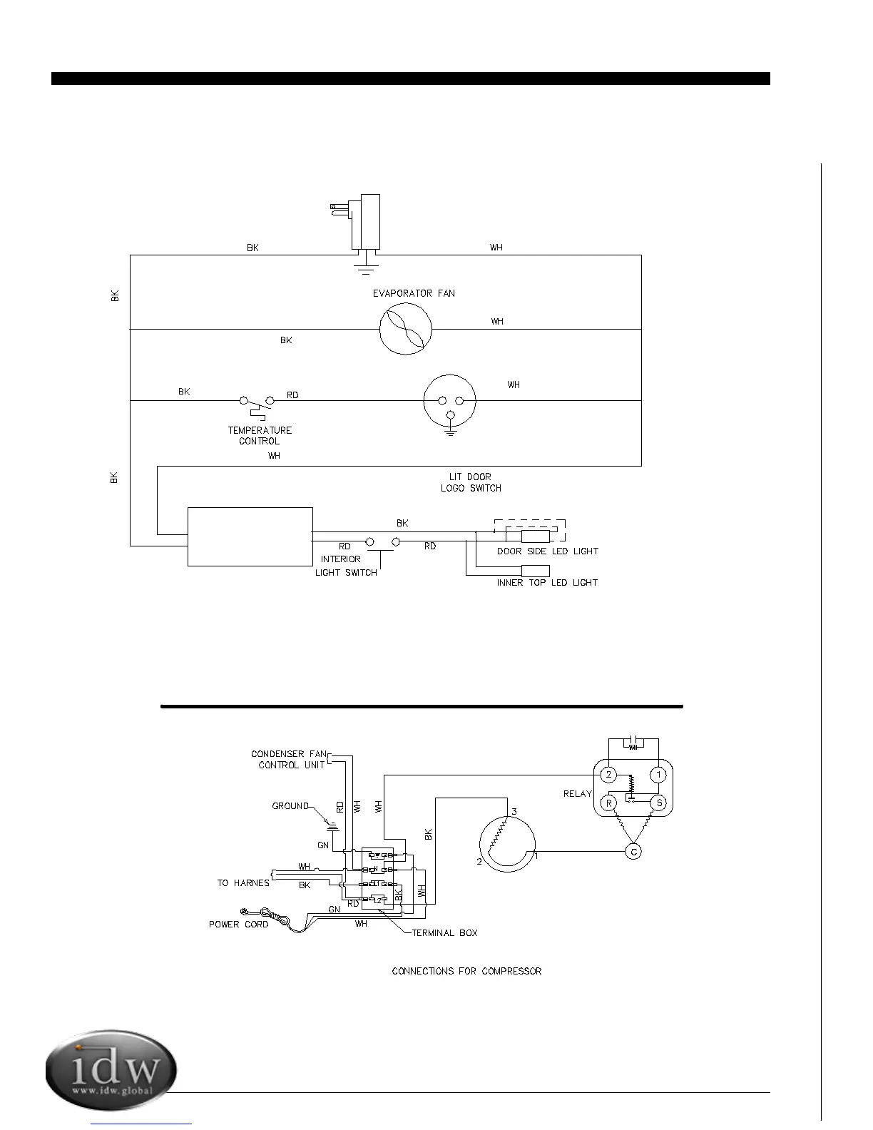
G-10f ELECTRICAL WIRING DIAGRAM
TRANSFORMER
START CAPACITOR
CONDENSER UNIT
SOCKET