EasyManua.ls Logo

IFO 96963 - Page 6

Default Icon
Print Icon
To Next Page IconTo Next Page
To Next Page IconTo Next Page
To Previous Page IconTo Previous Page
To Previous Page IconTo Previous Page
Loading...
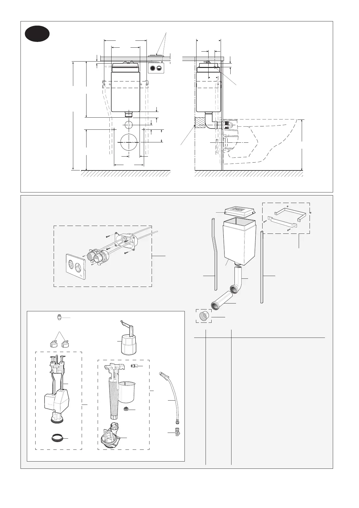
c/c 332
220
18
440
85
*)320-420
35
45
65-165
230
100
Min.
860
Max
1060
Min 190
48
70
28
400 - 500
Afsætningsmål
Reservedele
15
NB!
Cisternen skal monteres,
så der er nem adgang for
service af armaturet.
Følges dette ikke,
omfatter Ifö’s garanti ikke
omkostninger i
forbindelse med demont/
montering af kakler eller
lignende materiale.
*) Ved montering i flad væg skal vægbeslag 91221 anvendes, og der skal indsættes en støtteklods bag skyllerøret. **)(Medfølger ikke)
14
16
17
*
** 18
12
13
Pos. Ifö nr.
1 Z91515
2 Z96209
3 Z96272
4 Z96271
5 Z96074
6 Z96198
7 Z96481
8 Z96308
9
10
11
14
12
13
15
16
*17
**18
19
20
Kontraventil
Udløbsventil
Tilløbsventil med stativ
Flyder, tilløb
Tilløbsrør
Bælg med holder
Stempel
Ventilring
Møtrik
Stopventil
Ventilsæde, udløb
Skyllerør
g
Cisterne
Forlængerrør
Dæksel, fjernes ved montering af WC-kumme
Vægbeslag (Tilvalg)
Knapsæt, hvid (Tilvalg)
Knapsæt, blankforkromet (Tilvalg)
Cisternebeslag (Tilvalg)
Svømmerstang (Mørk grå)
Z96478
Z96721
Z96126
Z96500038
Z91289
96570
96571
96574
96415
91608
19
19
**
**
DK
*) Vulsthøjde
400 - 500
NB! WC skålen skal understøttes mellem væg og skålens bagkant
Vand-
tilførsel
Støtte for skyllerør
(medfølger ikke)
Alternative placeringer
1
2
3
4
5
6
1
2
3
4
5
8
3
4
5
7
1
10
11
9
6
20
2
Benævnelse
6 (28)

Related product manuals