EasyManua.ls Logo

Incon Auto-Learn TS-LS300 - Page 17

Incon Auto-Learn TS-LS300
52 pages
Print Icon
To Next Page IconTo Next Page
To Next Page IconTo Next Page
To Previous Page IconTo Previous Page
To Previous Page IconTo Previous Page
Loading...
MECHANICAL INSTALLATION Page 2-3
2
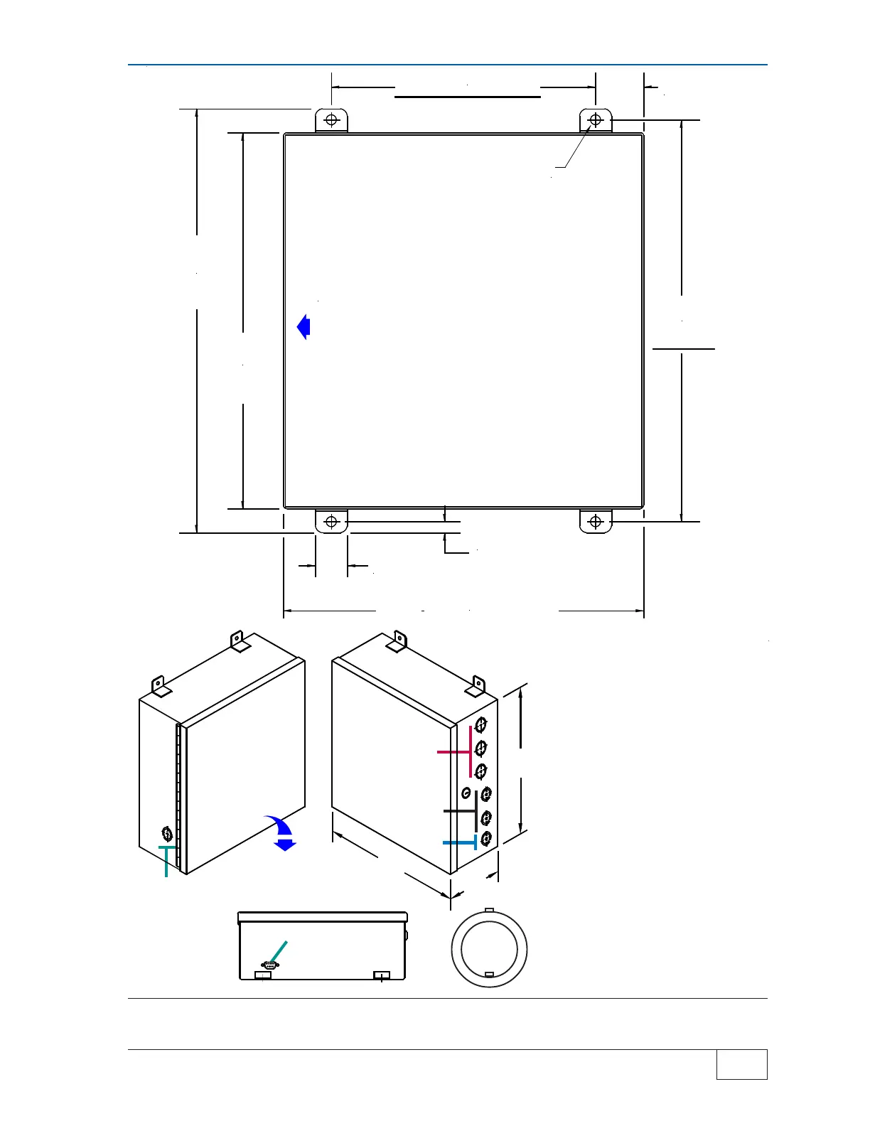
LS300 User’s Guide
TS-LS300 Console
Dimensions
in inches and (mm) –
Enclosure Only:
11.75H x 10.75L x 3.75D
(298H x 273L x 95D)
With Door Closed:
12H x 11L x 4D
(305H x 279L x 102D)
Dual-Sized Conduit Knockouts:
1/2 or 3/4 inch NPT
(DN13NPT or DN20NPT)
Dispenser
Hooks
LSU300
Transducers
RS232 Comm Port
Optional
TS-TPI to
TS Console
Input
Power
H
L
D
Figure 2-1 LS300 Console Mounting Dimensions & Knockout Locations
11.75
(298
mm)
REF
HINGE SIDE of
CONSOLE DOOR
11.00 x 12.00
(280 x 305 mm)
CONSOLE DEPTH
4.00 (102 MM)
REF
10.75 (273 mm) REF
0.31
(8 mm)
TYP.
1.00
(25 mm)
TYP.
13.38
(340
mm)
REF
0.31 (8 mm)
THRU MOUNTING HOLES
TYP. FOUR PLACES
7.00 (178 mm)
12.75
(324
mm)
1.50
(38mm)
TYP.

Related product manuals