EasyManua.ls Logo

Infiniton FGC-320W - Local da Instalação

Infiniton FGC-320W
Print Icon
To Next Page IconTo Next Page
To Next Page IconTo Next Page
To Previous Page IconTo Previous Page
To Previous Page IconTo Previous Page
Loading...
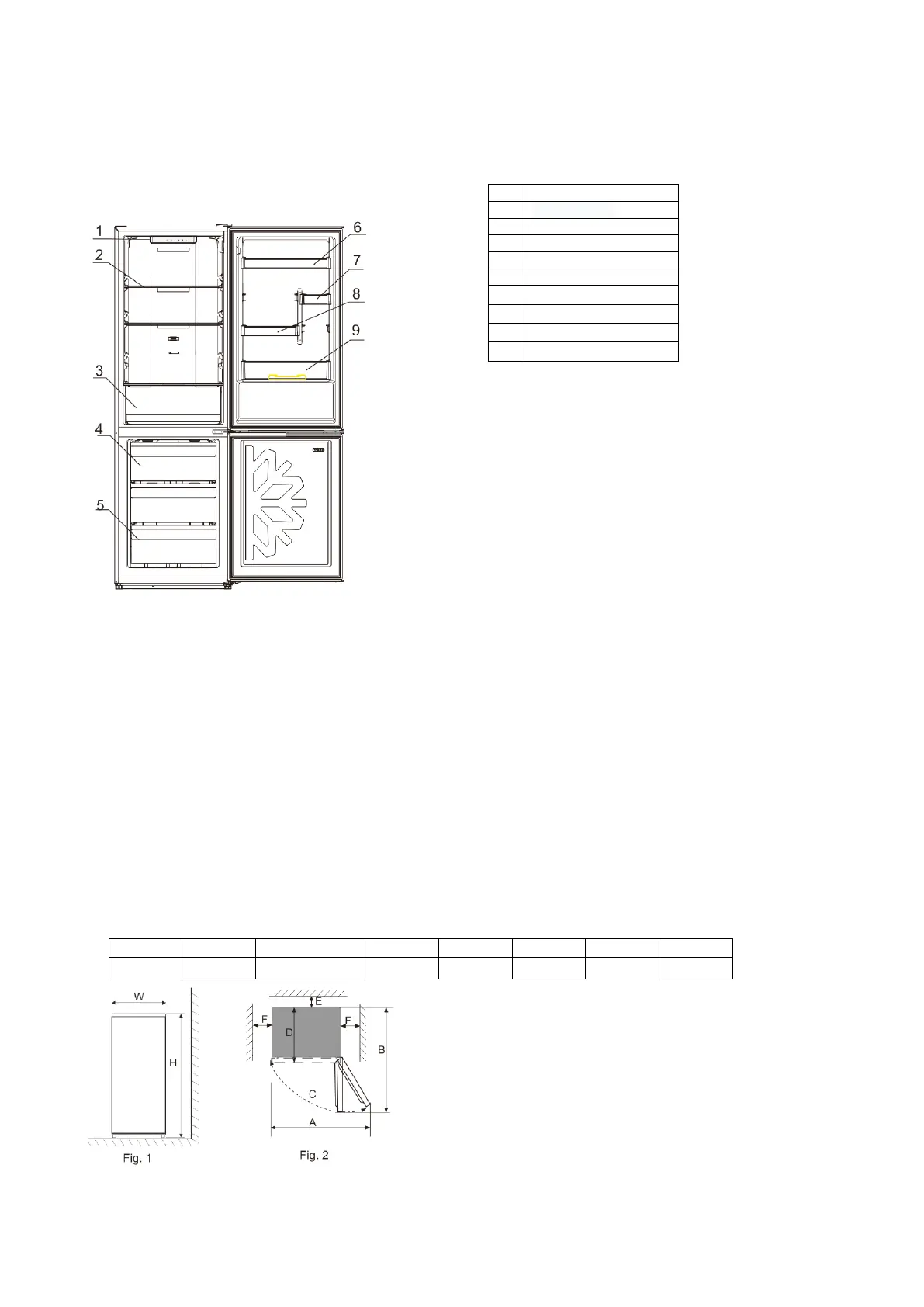
Peças do produto
Devido à inovação tecnológica, as descrições dos produtos neste manual podem não ser completamente
consistentes com o seu refrigerador. Os detalhes estão de acordo com o artigo do material.
III Preparações para uso
Local da instalação
1. 1. condição de ventilação
2. A posição selecionada para a instalação do refrigerador deve ser bem ventilada e ter menos ar quente. Não coloque o
refrigerador perto de uma fonte de calor, como uma cozinha, uma caldeira, e evite a luz solar direta, o que garante o
efeito de resfriamento e economiza consumo de energia. Não coloque a geladeira em um local úmido, para evitar que a
geladeira se oxide e perca eletricidade. O resultado do espaço total da sala em que o refrigerador está instalado dividido
pela quantidade de carga de refrigerante do refrigerador não deve ser inferior a 8 g / M3. Nota: A quantidade de
refrigerante carregado no refrigerador pode ser encontrada na placa de identificação.
3. 2. espaço de dissipação de calor
4. Ao trabalhar, o refrigerador emite calor para o ambiente. Portanto, pelo menos 300 mm de espaço livre na parte
superior, mais de 100 mm nos dois lados e mais de 50 mm na parte traseira do refrigerador devem ser salvos.
Dimensões em mm:
W
D
H
A
B
C(
°
)
E
F
595
635
1855
966
1192
130
50
100
Nota: Figura 1, Figura 2 apenas como um diagrama esquemático do
tamanho da demanda de espaço do produto. Nível 3.Land
No
Descrição do produto
1
Display
2
Prateleira de vidro
3
Gaveta de legumes
4
Gaveta do congelador
5
Gaveta do congelador
6
Porta prateleira
7
Porta prateleira
8
Porta prateleira
9
Porta prateleira

Related product manuals