EasyManua.ls Logo

Infiniton GAS41RO - Installation of Cooktop

Infiniton GAS41RO
Print Icon
To Next Page IconTo Next Page
To Next Page IconTo Next Page
To Previous Page IconTo Previous Page
To Previous Page IconTo Previous Page
Loading...
20
INSTALLATION OF COOKTOP
Check if the electrical installation is proper to bring the appliance in
operating condition. If electricity installation is not suitable, call an
electrician and plumber to arrange the utilities as necessary. Manufacturer
shall not be held responsible for damages caused by operations
performed by unauthorized persons.
WARNING: It is customer’s responsibility to prepare the location the
product shall be placed on and also to have the electrical installation
prepared.
WARNING: The rules in local standards about electrical installations
shall be followed during product installation.
WARNING: Check for any damage on the appliance before installing it.
Do not have the product installed if it is damaged. Damaged products
cause a risk for your safety.
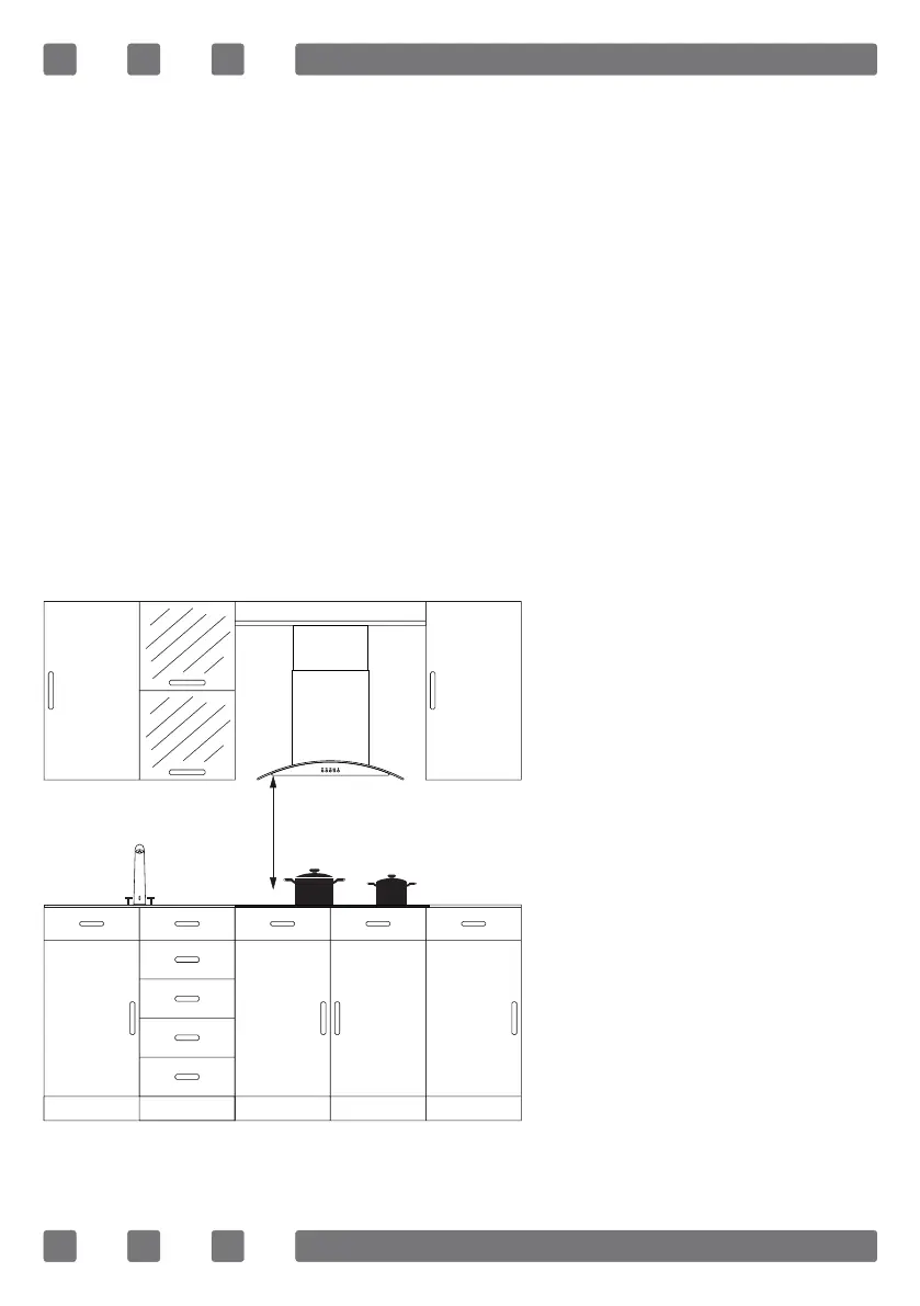
Correct Place For Installation
Product is designed in
accordance with the
kitchen counters supplied
from market. A safe
distance should be left
between the product and
kitchen walls and furniture.
If hood/aspirator will be
installed over your appliance,
obey to the recommendation
of hood / aspirator
manufacturer for assembly
height. (min. 65 cm)
The gap that cooktop is to
be placed on the counter
should be cut in line with
cooktop installation dimen-
sions.
For installation of the product, the rules specied in local standards
related to electricity should be complied.
650 mm min.
GB

Related product manuals