EasyManua.ls Logo

Inovance ISMH3-18C15CD-U Y Series - Chapter 2 Wiring; 2.1 Servo System Wiring

Inovance ISMH3-18C15CD-U Y Series
109 pages
Print Icon
To Next Page IconTo Next Page
To Next Page IconTo Next Page
To Previous Page IconTo Previous Page
To Previous Page IconTo Previous Page
Loading...
2 Wiring
2
- 12 -
Chapter 2 Wiring
2.1 Servo System Wiring
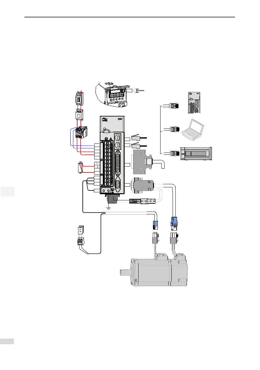
Figure 2-1 Wiring example of single-phase 220 V system
Servo motor main circuit cable
Servo motor
encoder cable
Servo drive I/O cable
(prepared by user)
Note 1
Servo drive RS232
communication cable
CHARGE
L1C
L1
L2
-
D
C
U
V
W
CN1
CN2
CN4
CN3
CN5
PE
L2C
24 VDC
System
ground
Battery box
Note
2
Servo drive to PC communication cable
Servo drive to PLC communication cable
Communication cable for multi-
drive parallel connection
Communication
cable for multi-drive
parallel connection
P
Power supply
Single-phase
220 VAC
Circuit breaker for wiring
Noise filter
Electromagnetic contactor
Turn ON/OFF power of the
servo drive. Install a surge
suppressor when using this
contactor.
Regenerative resistor
Electromagnetic relay
Control signal to turn ON/OFF of the
brake power supply. Install a surge
suppressor when using this contactor.
Brake power supply
24 VDC power supply, used
when the servo motor is
configured with brake.
I
2
P
-
S
5
5
R
6
0
S
The servo drive is directly connected to an industrial power supply, with no isolation such as transformer. In
this case, a fuse or circuit breaker must be connected on the input power supply to prevent cross electric
accidents in the servo system. The servo drive is not congured with the built-in protective grounding circuit.
Thus, connect a residual current device (RCD) against both overload and short-circuit or a specialized
RCCB combined with protective grounding.
It is forbidden to run or stop the motor by using the electromagnetic contactor. As a high-inductance device,
the motor generates instantaneous high voltage, which may damage the contactor.
Pay attention to the power capacity when connecting an external control power supply or 24 VDC,

Table of Contents

Related product manuals