EasyManua.ls Logo

Intellitec ELECTROINC CLIMATE CONTROL - Use of the ECC with Auxiliary Generator Sets

Intellitec ELECTROINC CLIMATE CONTROL
15 pages
Print Icon
To Next Page IconTo Next Page
To Next Page IconTo Next Page
To Previous Page IconTo Previous Page
To Previous Page IconTo Previous Page
Loading...
8 53-22130A100
131 EISENHOWER LANE NORTH
LOMBARD, ILLINOIS 60148-5413
630-268-0010 / 1-800-251-2408
ELECTRONIC CLIMATE CONTROL
INTELLITEC
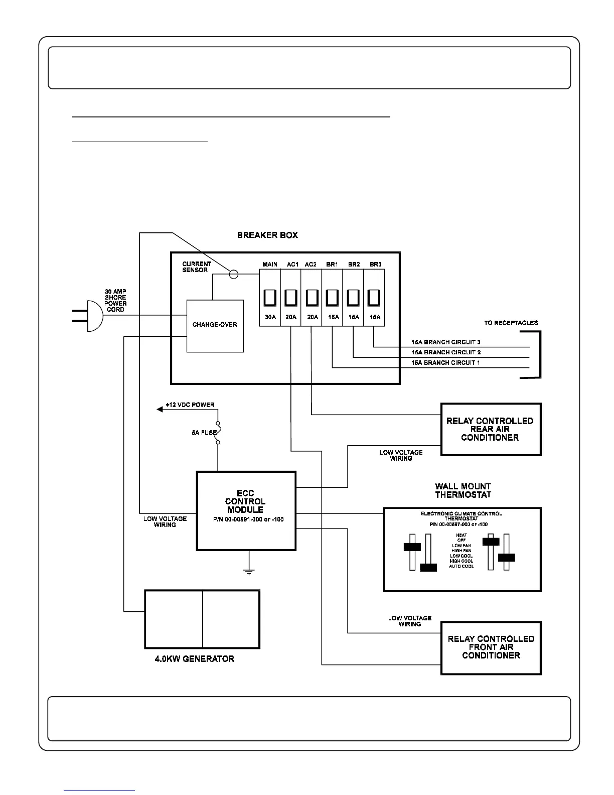
USE OF THE ECC WITH AUXILIARY GENERATOR SETS
USE WITH 4KW GENERATOR
In systems using 4KW generator sets the main system includes a manual or automatic change-over which
selects the 30 Amp power feed from either the shore power or generator. In this situation all ECC load shedding
features will remain unchanged.