EasyManua.ls Logo

Interklima II09CCV1 - Page 19

Interklima II09CCV1
56 pages
Print Icon
To Next Page IconTo Next Page
To Next Page IconTo Next Page
To Previous Page IconTo Previous Page
To Previous Page IconTo Previous Page
Loading...
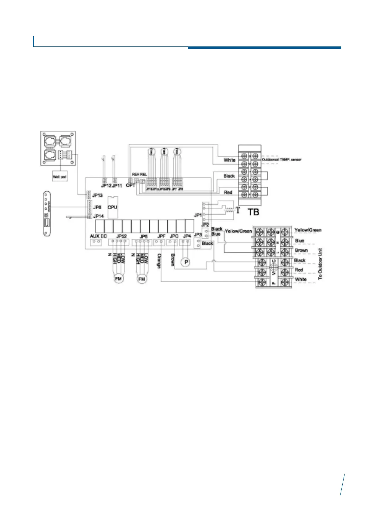
Interklima Dx Cassette Units
II-IO CCV1 R410A / Rotary / Scroll
19
II25C (Indoor)
Without Outdoor Fan Speed Control
Legend:
JP1 Transformer
JP2 Power
JP3 Reversing Valve
JP4 Pump
JP5 Indoor Fan
JP52 Indoor Fan
JP6 Remote Receiver
JP7 Stepping Motor
JP8 Stepping Motor
JP9 Stepping Motor
JP10 Stepping Motor
JP11 Indoor Temp Sensor
JP12 Indoor Coil TEMP Sensor
JP13 Wall Pad
JP14 Float Switch
JP15 Stepping Motor
JP16 Stepping Motor
JPC Compressor
JPF Outdoor Fan
OPT Outdoor Coil TEMP Sensor
REH High Pressure Protector
REL Low Pressure Protector
AUX EC Electric Heater