EasyManua.ls Logo

Interklima II09CCV1 - Page 26

Interklima II09CCV1
56 pages
Print Icon
To Next Page IconTo Next Page
To Next Page IconTo Next Page
To Previous Page IconTo Previous Page
To Previous Page IconTo Previous Page
Loading...
Interklima Dx Cassette Units
II-IO CCV1 R410A / Rotary / Scroll
26
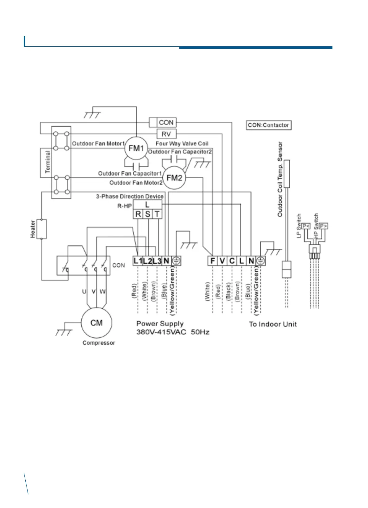
IO40/50CCY1 (Outdoor - 3 Phase)