EasyManua.ls Logo

Interklima PCE 03 - Page 15

Interklima PCE 03
36 pages
Print Icon
To Next Page IconTo Next Page
To Next Page IconTo Next Page
To Previous Page IconTo Previous Page
To Previous Page IconTo Previous Page
Loading...
Interklima Terminal Units
PCE -VS ñ Hydronic cassette
15
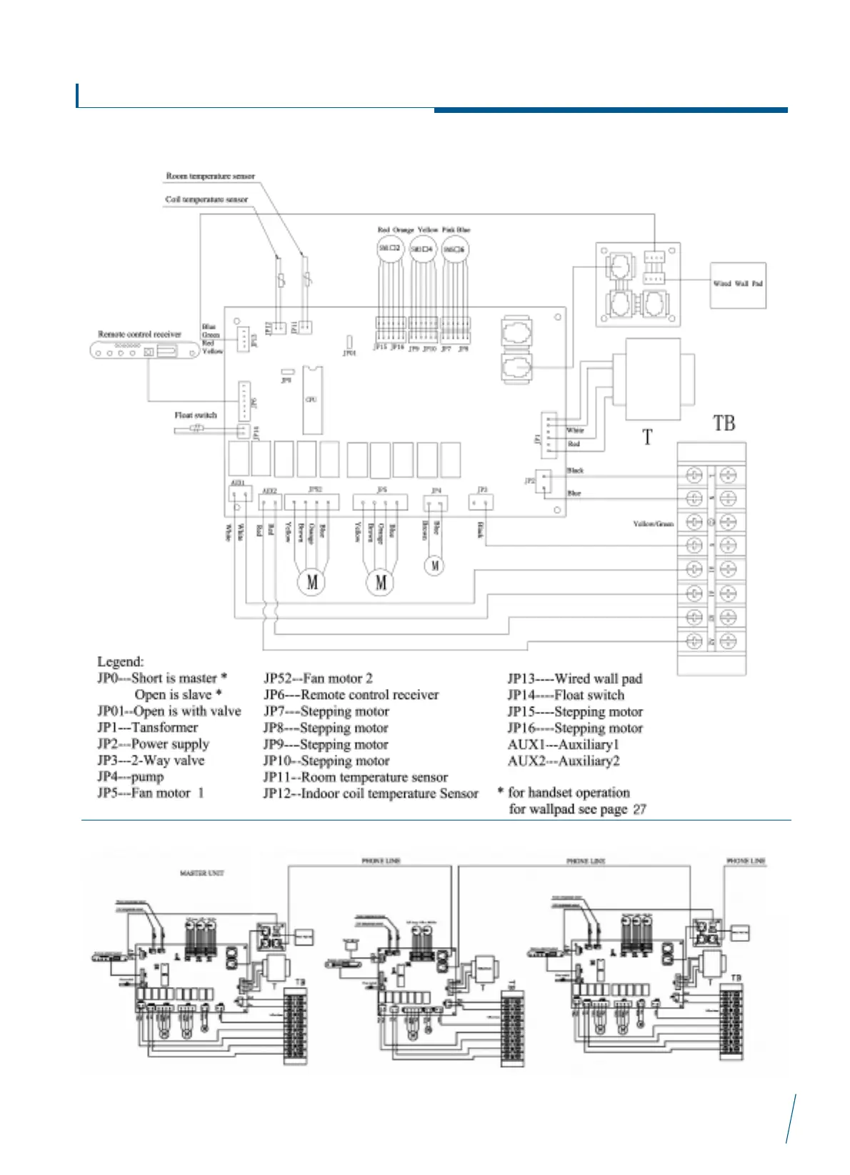
Control and power supply wiring diagram PCE-09/10/12/16
NOTES
Wirring diagrams on unit take precidents.
Master - Slave control wiring diagram