EasyManua.ls Logo

Intermatic RC Series - Page 2

Intermatic RC Series
4 pages
Print Icon
To Next Page IconTo Next Page
To Next Page IconTo Next Page
To Previous Page IconTo Previous Page
To Previous Page IconTo Previous Page
Loading...
2
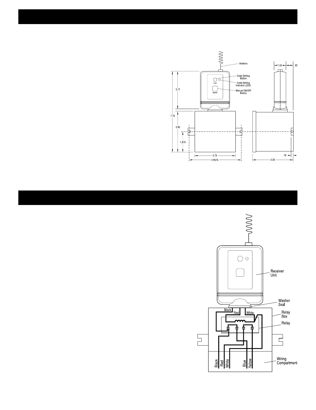
SPECIFICATIONS AND OTHER INFORMATION
INSTALLATION
USEFUL INFORMATION
1. Must be mounted upright. Antenna must be up.
2. Radio receivers are sensitive to heat. Avoid mounting them
above heaters, air conditioners or exposed to afternoon sun.
3. The higher the receiver module, the longer its range. For
good range and reliable reception, install modules as high as
practical above ground level with the antenna at top.
4. Large metal objects divert radio signals. Avoid mounting
receiver modules on metal walls, fences or near large metal
objects.
5. Environmental conditions could effect the operation of the
remote-control system. For example, in rain the range may
be less than normal.
6. Certain electric equipment like brush type motors or
electronic gas heater igniters emit radio signals and can
effect the function of the receiver module. Avoid mounting
modules near such equipment.
7. To prevent electronic interference, install receiver modules at
least 3 feet apart.
Make sure the intended load is within the capacity of the module,
see ratings on page 1.
1. This module can be used to control either a 120 or 240 volt load.
The NEUTRAL, however, must always be connected to the
WHITE lead of the module. Refer to wiring diagrams on page 3.
2. Select the proper location (see Useful Information above) and
install receiver assembly on a vertical surface or other support,
using hardware suitable for the purpose.
3. Prepare the necessary conduit runs as required by the installation
layout and pull in the specied conductors.
4. Following wiring diagrams on page 3, make wire connections as
shown.
5. Turn ON power and test installation, using the ON/OFF button on
face of the receiver module. Replace junction box cover, make
sure the installation is secure.
6. To link transmitter button with the receiver, see operation
instructions on page 3.

Related product manuals