EasyManua.ls Logo

Intertek GPG 16 SEER - Wiring Diagram

Intertek GPG 16 SEER
28 pages
Print Icon
To Next Page IconTo Next Page
To Next Page IconTo Next Page
To Previous Page IconTo Previous Page
To Previous Page IconTo Previous Page
Loading...
23
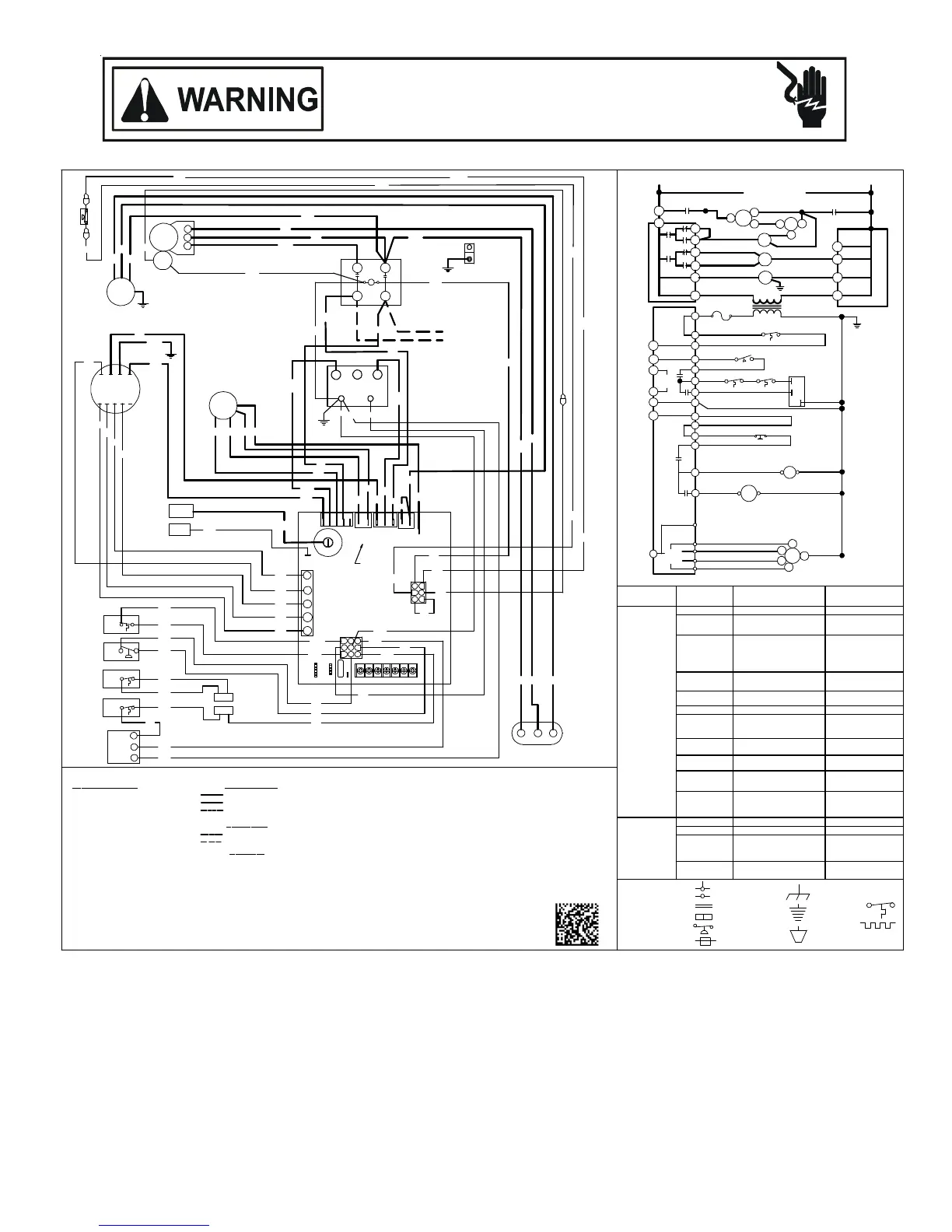
HIGH VOLTAGE!
D ALL .
M. F
.
ISCONNECT POWER BEFORE SERVICING
ULTIPLE POWER SOURCES MAY BE PRESENT AILURE TO DO
SO MAY CAUSE PROPERTY DAMAGE, PERSONAL INJURY OR DEATH
Wiring is subject to change. Always refer to the wiring diagram on the unit for the most up-to-date wiring.
GPG16*****M41A** WIRING DIAGRAM
0140G03218-A
PU
RD
BK
BK
RD
BL
PU
PU
PU
PU
OR
BR
WH
BL
BK
PU
BL
IGN
ALS
SOL
BK
YL
RD
GR
SEENOTE3
EM
208
PU
BK
NGL
T5T4T3T2
T1
240
3
TR
2
RD
24V
C
1
YL
BL
208-230/1/60
POWER SUPPLY
GND
C
PU
PU
RD
BK
BR
PU
BK
R
S
COMP
C
T2T1
CC
L2L1
CM
PU
SEE NOTE 3
BL
BK
SEE NOTE 2
YL
YL
YL
YL
YL
YL
YL
YL
FS
RD
G
ECON
HI COOL
LO COOL
HI HEAT
LO HEAT
P2
MVC
MVH
MVL
PSW
PSW
HLO
TH
2
3
5
6
4
1
5
7
9
8
6
3
1
2
L1
L1
HI
LO
HI
SOL
GV
T4
T1
T3
T2
EM
C
CC
C
H
M
RS
PS
LS
ALS
TR
EM
VM
H
F
RCCF
C
L2
T2
208-230/1/60
CM
L1
R
T1
S
COMP
C
L1
SUPPLY VOLTAGE
P1
INTEGRATED IGNITION CONTROL
CC
CC
COM
HLI
SEE NOTE 2
INTERGRATED IGNITION
CONTROL
F
Y1
R
C
Y2
W2
W1
TO
MICRO
TO
MICRO
INTEGRATED IGNITION CONTROL
L1
LO
L2
L2
L2
L2
SOL
HPS
1
2
3
SEENOTE5
RUN CAPACITOR FOR COMPRESSOR/FAN
F
ACTORY W IRING
SOLENOID (2ND STAGE COOL)
SOL
RCCF
FUSE
F
COMPRESSORCOMP
LINE VOLTAGE
OPTIONAL HIGH VOLTAGE
HIGH VOLTAGE
FI
ELD WIRING
LOW VOLTAGE
LOW VOLTAGE
BK BLACK
W
IRE CODE
PK PINK
OR ORANGE
GR GREEN
BR BROWN
BL BLUE
RD RED
WH WHITE
YL YELLOW
PU PURPLE
ALS
CC
C
OMPONENT LEGEND
CONTACTOR
AUXILLARY LIMIT SWITCH
GAS VALVE
GV
FS
GND
IGNITOR
PS
LS
IGN
IIC
EQUIPMENT GROUND
PRESSURE SWITCH
LIMIT SWITCH
INTEGRATED IGNITION CONTROL
FLAME SENSOR
TR
TRANSFORMER
ROLLOUT SWITCH
RS
EM
EVAPORATOR MOTOR
ODF
OUTDOOR FAN
HIGH PRESSURE SWITCH
HPS
NOTES
1. REPLACEMENT WIRE MUST BE THE SAME SIZE AND TYPE OF
INSULATION AS ORIGINAL.(USE COPPER CONDUCTOR ONLY).
2. FOR 208 VOLT TRANSFORMER OPERATION MOVE BLACK WIRE
FROM TERMINAL 3 TO TERMINAL 2 ON TRANSFORMER.
3. USE COPPER CONDUCTORS ONLY
4. FOR 208V OPERATION, REMOVE BLUE LEAD FROM INDUCER LOW
TERMINAL. MOVE BLACK LEAD FROM PARK TERMINAL ONTO
INDUCER LOW TERMINAL. PLACE BLUE LEAD ON PARK TERMINAL.
5. USE NEC CLASS 2 WIRE FOR THERMOSTAT FIELD WIRING.
REPLACE CONTROL
3MINCOMP. SHORT
CYCLE DELAY
COMPR. SHORT CYCLE DELAY
6 FLASHES
FLASHES
CHECK FOR SHORTS IN
FLAME SENSOR WIRING
CHECK GAS VALVE
CHECK ROLLOUT LIMIT SW.
CHECK AUXILIARY LIMIT SW.
CHECKMAIN LIMIT SWITCH
CHECK WIRING FOR SHORTS
CHECK PRESSURE SWITCHPRESSURE SWITCH CLOSED
CHECK VENT MOTOR
CHE CK TUBING
CHECK FUSE(S)
CHECK INPUT POWER
-
GAS PRESSURE
FLAME SENSOR
GAS VALVE
GAS FLOW
CHECK PRESSURE SWITCH
OFF
ON
1FLASH
3FLASHES
2FLASHES
4FLASHES
5FLASHES
FALSE FLAME DETECTED
OPEN LIMIT SWITCH
WITHOUT INDUCERON
PRESSURE SWITCH OPEN
IGNITIONFAILURE
NORMAL OPERATION
NO POWER OR
INTERNALCONTROL
FAULT
STATUS CHECK
CHECK FOR SHORTS IN
FLAME SENSOR WIRING
-
NORMAL FLAME PRESENT
-
GAS PRESSURE
FLAME SENSOR
GAS VALVE
GAS FLOW
CHECK GAS VALVE
ON
OFF
1FLASH
2FLASHES
FALSE FLAME DETECTED
LOW FLAME SIGNAL
NO FLAME PRESENT
PSW/LOC OPEN
9FLASHES
CHECKJUMPER BETWEEN 1
AND 4 ON 6-CIRCUIT
CONNECTOR
IDT/ODT OPEN
8FLASHES
CHECK AUXILIARY LIMIT SW.
CHECK MAIN LIMIT SWITCH
LIMIT OPEN 5 TIMES IN SAME
CALL FOR HEAT
7 FLASHES
CHECK REFRIGERANT
SWI TCHES FOR LOSS O F
CHARGE OR HIGH HEAD
PRESSURE
EQUI PMENT GROUND
FIELD GROUND
FIELD SPLICE
SWITCH (TEMP)
IGNITER
SWI TCH (PRESS.)
OVERCURRENT
PROT. DEVICE
JUNCTION
TERMINAL
INTERNALTO
INTEGRATED CONTROL
PLUG CONNECTION
CM CONDENSER MOTOR
VENT MOTOR
VM
GY GRAY
DIAGNOSTIC
LED
RED
AMBER
HPS
HI
LOW
ODF
L1
HIGH
FS
T1
LOW
INDUCER
L2
PARK
F
OR
OR
YL
PU
BR
NONE
5MIN
10 MI N
180
150
120
90
Y2
Y1G
W2
W1CR
BLOWER
OFF DELAY
STAGE
DELAY
ECON
LO HEAT
HI HEAT
HI COOL
LO COOL
24VAC COM
5
4
3
2
1
1
2
3
4
5
6
7
8
9
P1
BL
P2
5
4
2
1
3
6
YL
YL
YL
YL
SEE NOTE 5
H
CF
C
H
M
GV
GAS VALVE
W. R.
PS
LS
RS
1
2
1
2
PU
YL
RCCF
OR
OR
YL
YL
PU
PU
PU
PU
BR
BL
YL
YL
PU
PU
BL
YL
BR
WH
RD
YL
BR
PU
PU
RD
BL
BK
BK
YL
VM
BL
BK
BK
RD
SEE
NOTE 4
BK
SEENOTE4