EasyManua.ls Logo

Invicta 800 - Appliance Embedding Instructions

Invicta 800
Print Icon
To Next Page IconTo Next Page
To Next Page IconTo Next Page
To Previous Page IconTo Previous Page
To Previous Page IconTo Previous Page
Loading...
800 leather insert Reference: P958144
XD – 18/02/2020 page 3/10
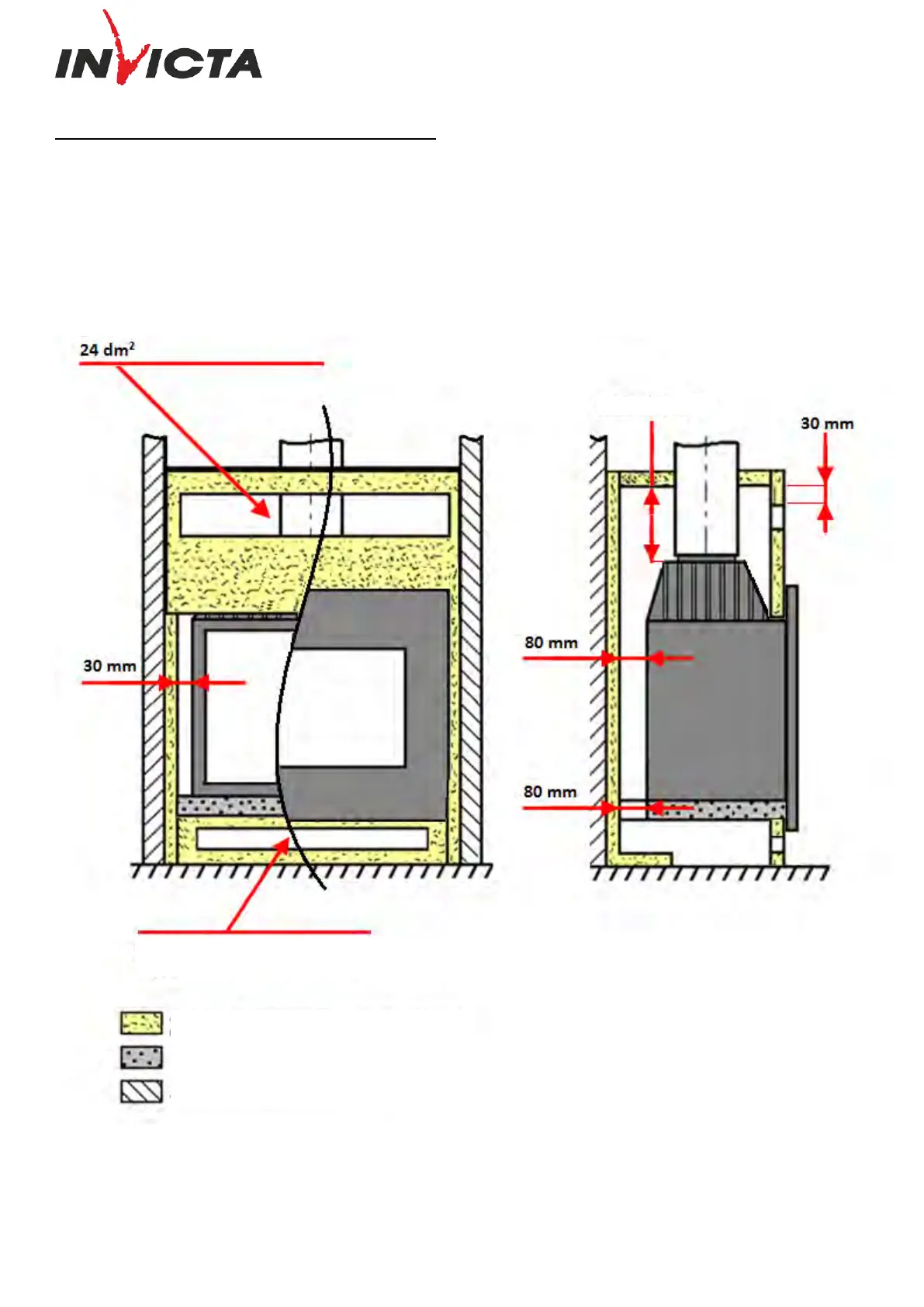
APPLIANCE EMBEDDING INSTRUCTIONS.
To limit the heating of the walls composing the casing of the fireplace to be built to 65K (K = degrees Celsius above room
temperature), and for the appliance to operate properly, the principles shown in the diagram below should be followed.
Respect the minimum embedding and convection air circuit dimensions (size of the intake for the “air to be heated” and “hot air” outlet
size).
The indicated minimum embedding dimensions guarantee access to operating controls, sufficient space for the moving parts, access and
removal of parts that may need to be replaced.
Fresh air intake size:
8 dm
2
50 mm thick rock wool, max conductivity 0.04W/m°C
with aluminium side facing the insert
concrete
fireplace walls and floor
min 500mm

Related product manuals