EasyManua.ls Logo

IPSO CHM2097N - Page 32

IPSO CHM2097N
75 pages
Print Icon
To Next Page IconTo Next Page
To Next Page IconTo Next Page
To Previous Page IconTo Previous Page
To Previous Page IconTo Previous Page
Loading...
© Copyright, Alliance Laundry Systems LLC – DO NOT COPY or TRANSMIT
Washer-Extractors
5-08-51
31
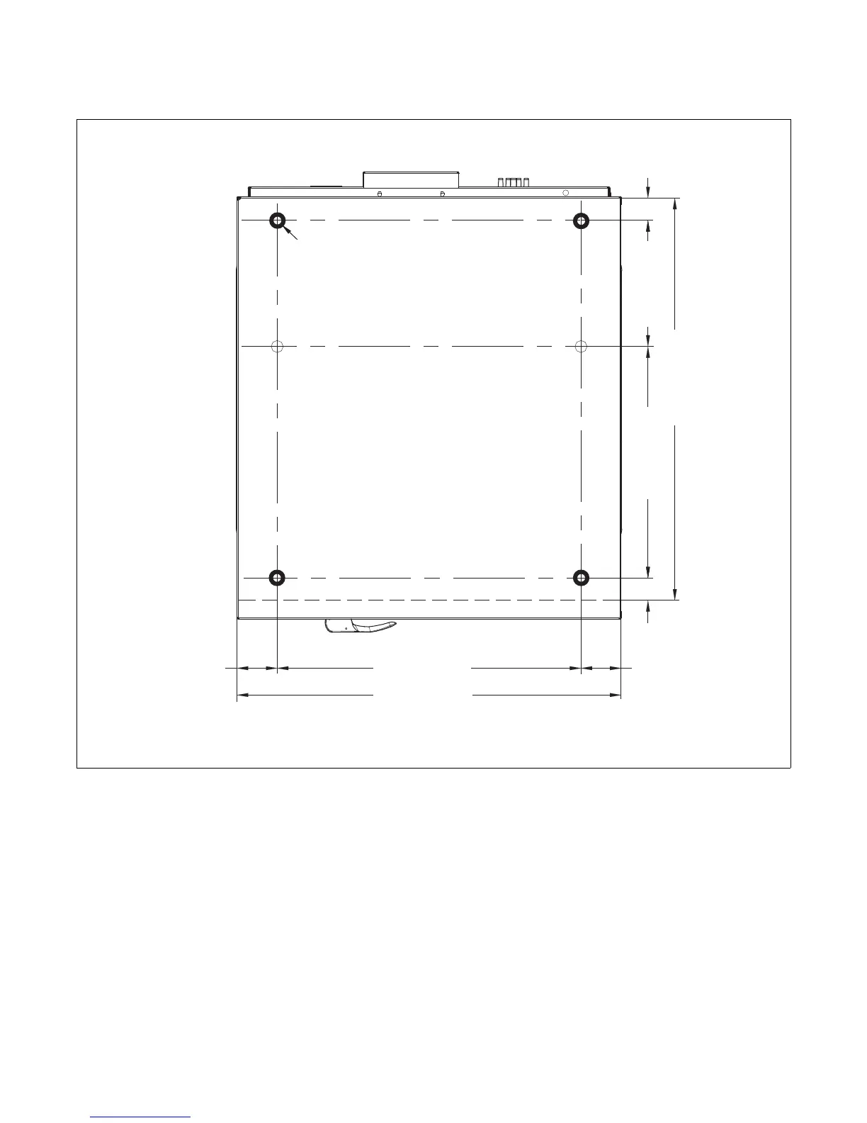
Mounting Bolt Hole Locations - Model IWF055 (2-speed)
CHM2162N
Figure 18
CHM2100N
3.54 in.
(90 mm)
26.77 in. (680 mm)
1.97 in.
(50 mm)
1.97 in.
(50 mm)
11.1 in. (282 mm)
35.43 in. (900 mm)
20.39 in. (518 mm)
3.54 in.
(90 mm)
33.86 in. (860 mm)
ø1.06 in.
(ø27 mm)

Related product manuals