EasyManua.ls Logo

ISM SV-520 - Page 3

Default Icon
33 pages
Print Icon
To Next Page IconTo Next Page
To Next Page IconTo Next Page
To Previous Page IconTo Previous Page
To Previous Page IconTo Previous Page
Loading...
2. Connector position and function
接頭位置與功用:
電路板上備有下列接頭.如圖();()為接頭說明;控制箱外部接頭如圖(),再根據縫紉機的裝置,把連
接線接到適當位置.
Circuit boards as Fig. 2 . Table1 is the explanation for the connectors. Connectors for control box external
output please refer to Fig 3, then according to the machine, connect it to the respective connectors.
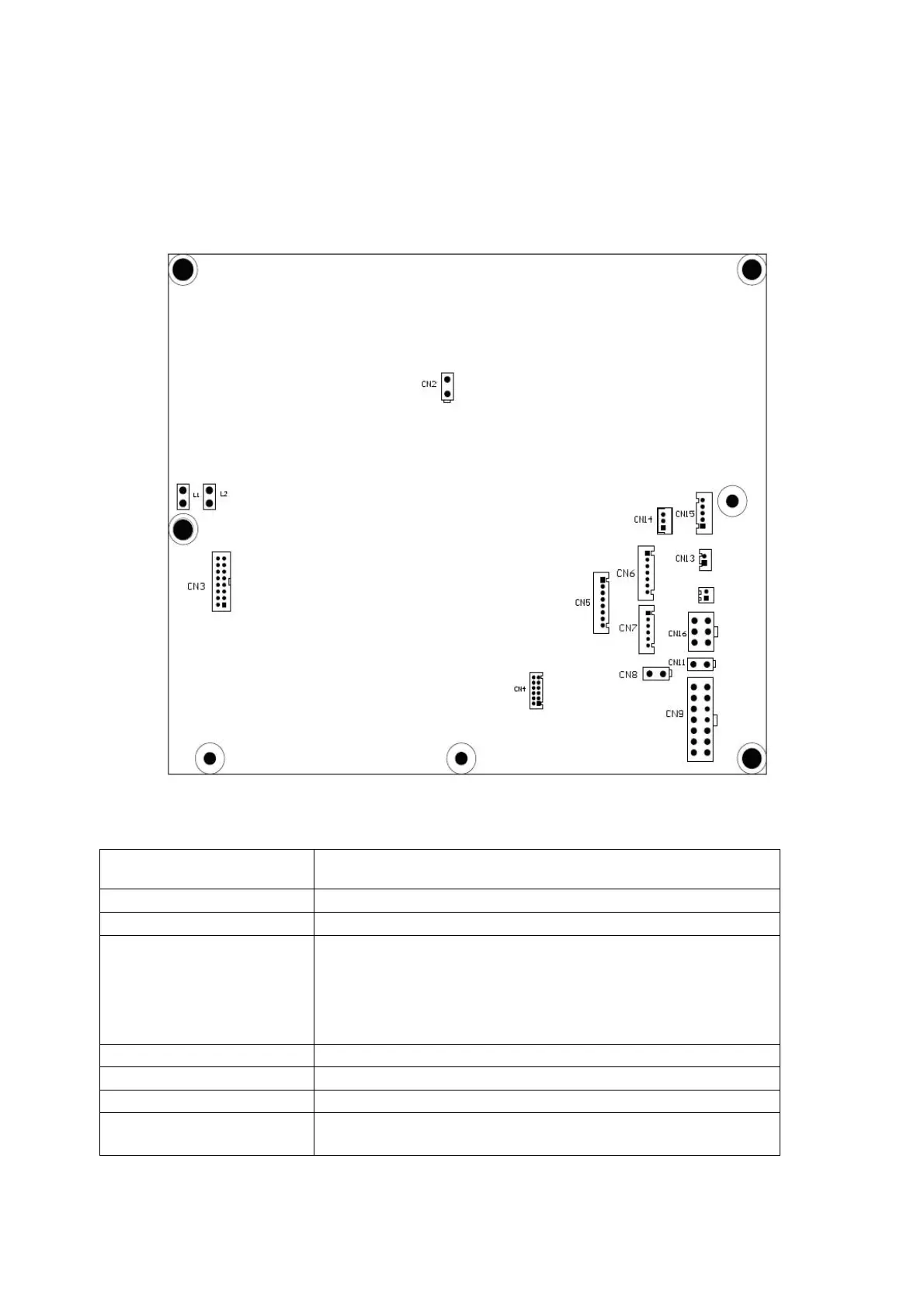
Fig.2 ( )
接頭 Connector 接頭說明 Connectors’ description
CN3
前蓋 C02 接頭. Front cover C02 connector
CN5
馬達編碼器接頭 Motor encoder connector
CN4
立式踏板接頭 Standing operation pedal connector
Option IN_I: pin 5 & 6
Option IN_A : pin 7 & 8
Option IN_B : pin 9 & 10
Option IN_C : pin 11 & 12
CN13
速度基座接頭 Speed unit connector
CN14
安全開關接頭 Safety switch connector
CN7
同步器接頭 Synchronizer connector
CN6
選針盒接頭
External Panel connector
3