EasyManua.ls Logo

Jacobsen AR331 - 41.1 Electrical Schematic

Jacobsen AR331
230 pages
Print Icon
To Next Page IconTo Next Page
To Next Page IconTo Next Page
To Previous Page IconTo Previous Page
To Previous Page IconTo Previous Page
Loading...
88
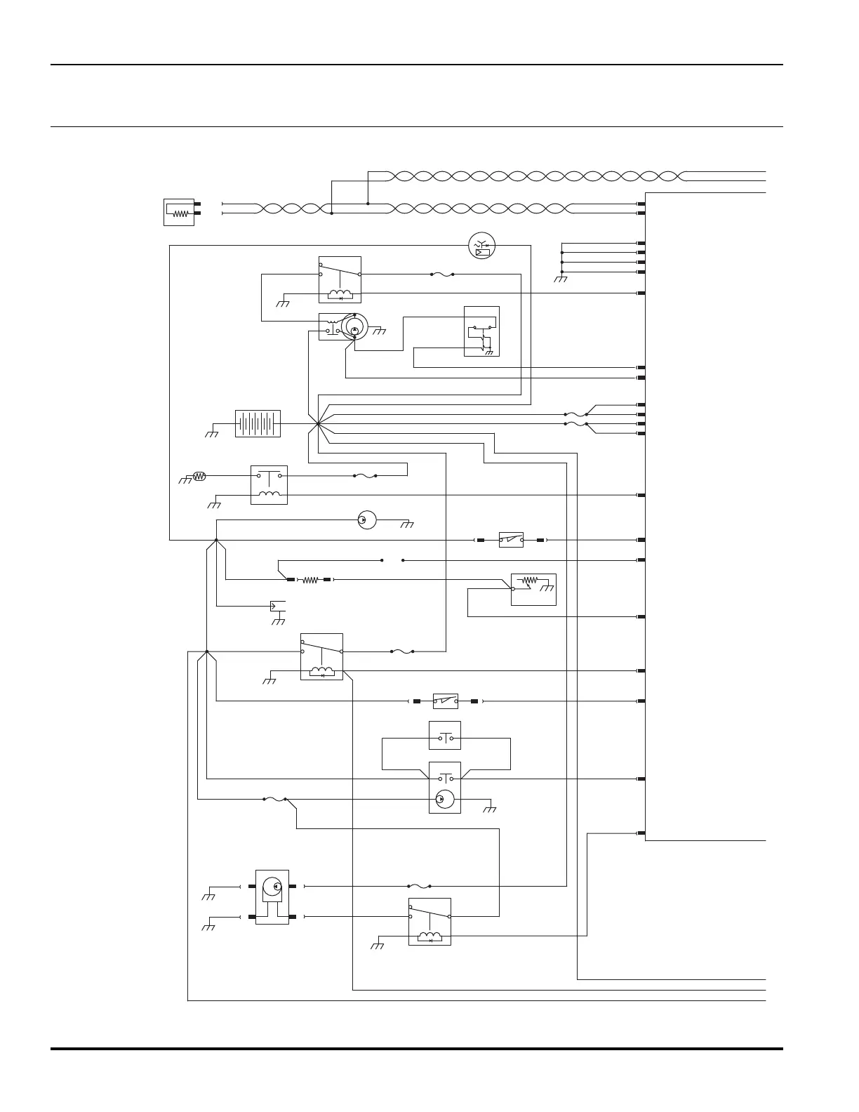
AR331
41.1 Electrical Schematic
Part Number 4340549
Serial No. All
R5
R2
U1
R1
M3
106 - Og
106-Og 20 - Bk
K3
K2
K1
133 - Wh
31 - Rd 1 - Rd
1 - Rd
1 - Rd
1 - Rd
1 - Rd
1 - Rd
Rd
1 - Rd
1 - Rd
1 - Rd
122 - Bn
122 - Bn
1 - Rd
155 - Bn 1 - Rd
118 - Bn
127 - Wh/Og
118 - Bn
32 - Wh
M
M
M1
M2
S
B
F
+
MCU 1-09
CAN H
MCU 1-08
CAN L
MCU 3-07 Program Select
107 - Og107 - Og
MCU 4-10 Neutral Switch
106 - Og Wh Bk 116 - Wh/Ye
106 - Og
G
3
U
8685
3087
U4
Rd
RdBk
Rd
106-Og
20 - Bk
151 - Wh
20 - Bk
20 - Bk
3 - Rd
105 - Rd/Og
20 - Bk
20 - Bk
914 - Gn
915 - Ye
914 - Gn
915 - Ye
914 - Gn
915 - Ye
914 - Gn
915 - Ye
F3
F2
F9
F6
F7
B1
SW7
MCU 1-06 Start
8685
30
87
87A
K4
M4
8685
30
87
87A
8685
30
87
87A
MCU 3-09
Ground
MCU 6-09
Ground
MCU 1-02 Ignition-Run
105 - Rd/Og
20 - Bk
20 - Bk
MCU 1-10
Ground
20 - Bk
MCU 1-07
Ground
20 - Bk
MCU 4-01
Seat Switch
119 - Og/Bn
MCU 6-07
MCU 6-06 +12V Unswitched
MCU 6-01 Fuel Pull
MCU 2-06 Fuel Hold
+12V Unswitched
MCU 1-04
MCU 1-01 +12V Unswitched
+12V Unswitched
MCU 5-08 Glow Plug
121 - Rd
121 - Rd
103 - Rd
F8
MCU 3-02 Engine Temp
106 - Og
137 - Pu
103 - Rd
106 - Og
154 - Og/Bu
154 - Og/Bu160 - Ye160 - Ye
35 - Rd/Og
12
34
119 - Og/Bn
106 - Og
105 - Rd/Og
1 - Rd
3
5
1
4
SW4A
21
SW4
M
M
H
P
SOL12
126 - Gn
J4-B
J4-A
R3
137 - Pu 137 - Pu
137 - Pu
106 - Og
106 - Og
154 - Og/Bu
154 - Og/Bu
F5
1 - Rd
153 - Og
MCU 4-02 Crosscut Switch
149 - DBu106 - Og
SW8
MCU 2-04 Fan Relay
150 - Ye
20 - Bk
150 - Ye
U5

Related product manuals