EasyManua.ls Logo

JCM EBA-34 - Page 11

Default Icon
104 pages
Print Icon
To Next Page IconTo Next Page
To Next Page IconTo Next Page
To Previous Page IconTo Previous Page
To Previous Page IconTo Previous Page
Loading...
1 - 11
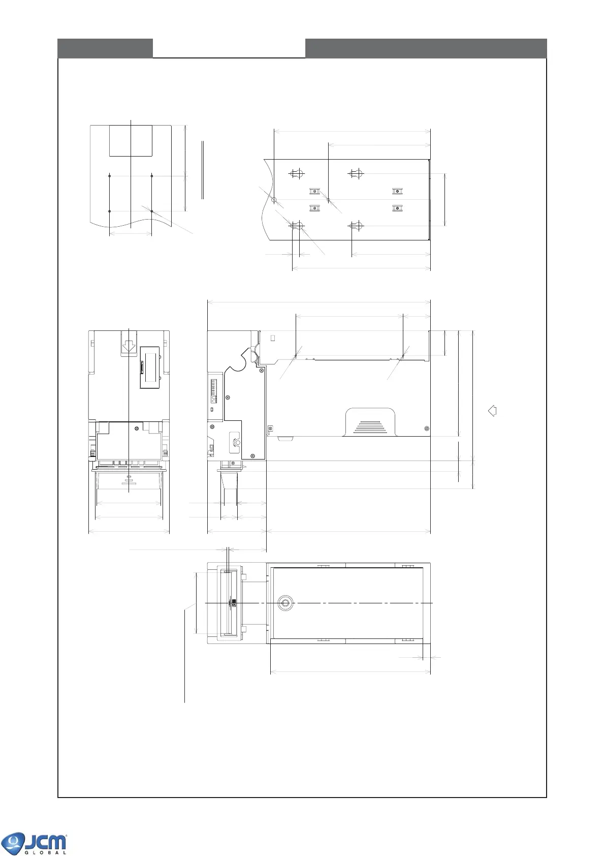
CHAPTER 1 Product Name & Specifications
876
ON? OFF?
53421
OPEN
CENTERING GUIDE
OPEN CLOSE
VIEW A
150
185
84233
(317)
10.6
227
38.9 152.6
35.5
7250
60
4-9.5
196
111.8
74
145.1
4-R3
4-R5
4-M3
φ
2.7
φ
.7
φ
4
96
91
42.5 17.5
14.8
39.8
23.541.5
53.7 2.6(Bill entrance)
115
86(Bill entrance)
222.4
φ
7
A
8-2 EBA-3x-SD3 with faceplate

Related product manuals