EasyManua.ls Logo

John Bean EELR538A - Page 6

John Bean EELR538A
19 pages
Print Icon
To Next Page IconTo Next Page
To Next Page IconTo Next Page
To Previous Page IconTo Previous Page
To Previous Page IconTo Previous Page
Loading...
Models EELR538A and EELR539A
Models EELR540A and EELR541A
Installation, Operation and Maintenance
Page 6
Rev. 08/27/2021
15-18000-IOM-W.doc
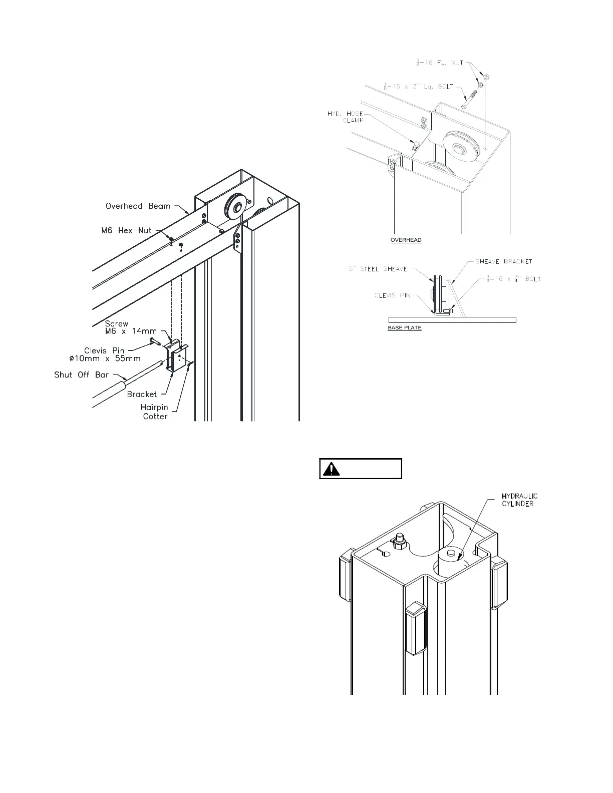
15) Install the Idler Bracket to the Overhead Beam
using the rear set of holes on the Idler Side of
the lift. Fig. 6. Note the orientation of the Idler
Bracket. The narrow slot needs to be facing
towards the Power Column.
Slide the Shutoff
Bar over the limit switch on the Power Side. Pin
the Shutoff Bar to the Idler Side Bracket with the
10mm dia. x 55mm Lg. clevis pin & hairpin
cotter.
Fig. 6 – Overhead Bracket Idler Side
16) Assemble the cable trapping hardware with a
3/8”-16 x 3” Lg bolt with (2) 3/8”-16 flange nuts at
each upper sheave location. For the lower
sheaves, use a 3/8”-16 x 3/4" Lg. bolt and a 1/4"
dia. x 1 3/4" Lg. clevis pin (Fig. 7). At the upper
and lower sheave connections, disassemble and
reassemble the cable trapping hardware.
Fig. 7 – Cable Trapping
S
YNCHRONIZER CABLES
17) Manually raise the carriages to a common lock
position, to gain access to the top of the
carriage.
Insure that the top of the hydraulic cylinder is
out of the way but still retained in the
opening of the top plate of the carriage as
shown in Fig 8.
Failure to follow previous step
could result in personal injury.
Fig. 8 – Cable Assembly
C A U T I O N

Related product manuals