EasyManua.ls Logo

Jøtul F 200 IT - Page 5

Jøtul F 200 IT
38 pages
Print Icon
To Next Page IconTo Next Page
To Next Page IconTo Next Page
To Previous Page IconTo Previous Page
To Previous Page IconTo Previous Page
Loading...
5
ENGLISH
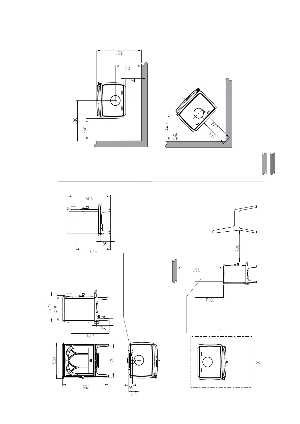
Fig. 1
Jøtul F 200 IT
900361-P00
F 200 Short legs
Hole in the oor for external air Ø80
Min. distance to ceiling and furniture
Flue pipe Ø150,
Min. length = 500 mm
Combustible wall
Firewall (See chapter 3.3 in the manual)
Min. measurments oor plate
X/Y = According to national laws and regulations
Min. distance to combustible wall

Related product manuals