EasyManua.ls Logo

JVC KD-DV4205 - Page 4

JVC KD-DV4205
6 pages
Print Icon
To Next Page IconTo Next Page
To Next Page IconTo Next Page
To Previous Page IconTo Previous Page
To Previous Page IconTo Previous Page
Loading...
ENGLISH INDONESIA
4
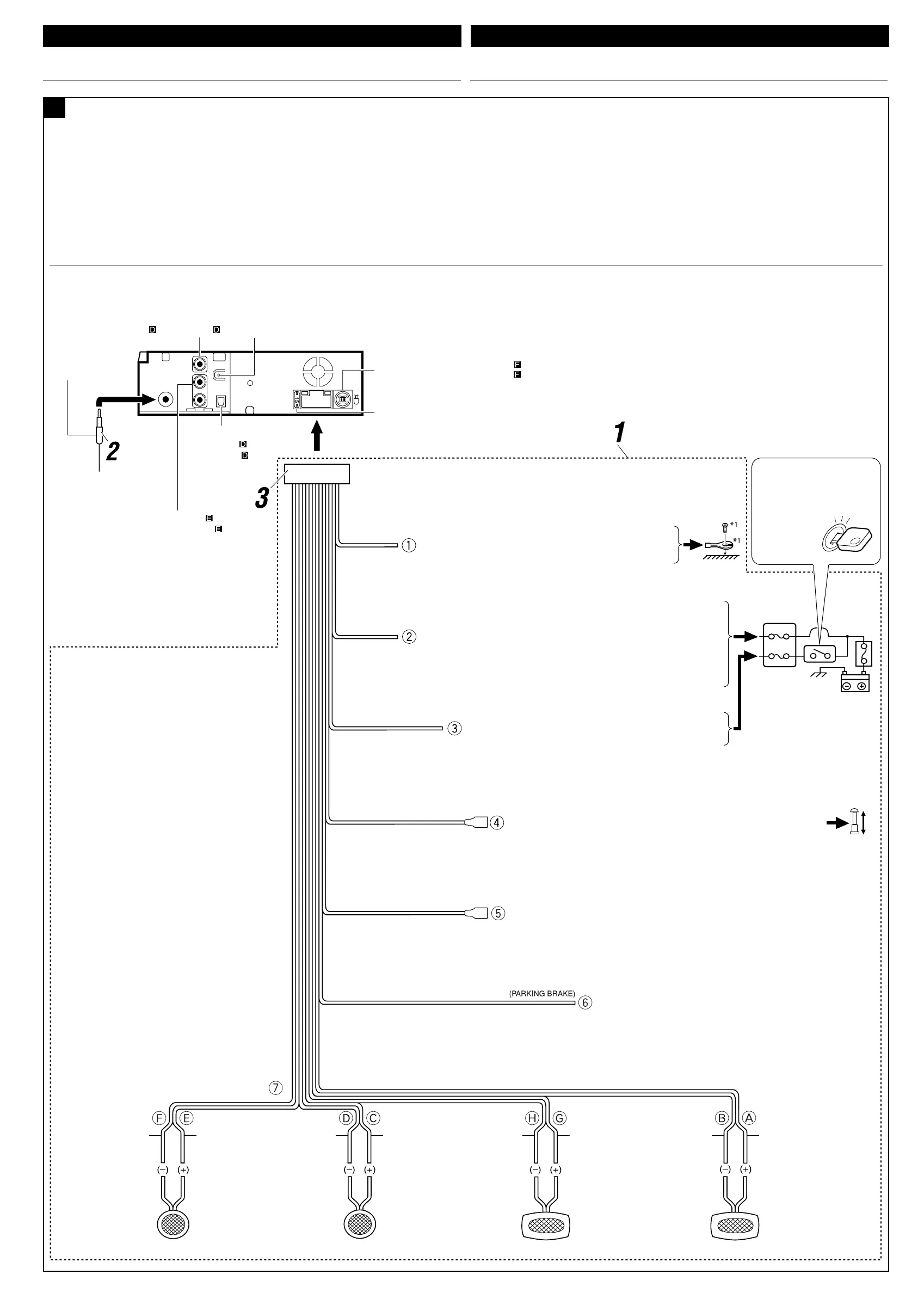
To external components (see diagram )
Ke komponen eksternal (lihat diagram )
Light green
Hijau muda
VIDEO OUT
(see diagram
/ lihat diagram )
DIGITAL OUT
(see diagram
/
lihat diagram )
A
To parking brake, metallic body or chassis of the car
Ke rem parkir, logam body atau casis mobil.
Before connecting: Check the wiring in the vehicle carefully. Incorrect connection may cause serious
damage to this unit.
The leads of the power cord and those of the connector from the car body may be different in color.
1 Connect the colored leads of the power cord in the order specified in the illustration below.
2 Connect the antenna cord.
3 Finally connect the wiring harness to the unit.
Sebelum penyambungan: Cek perkabelan dalam mobil dengan hati-hati. Penyambungan yang
tidak benar mungkin menyebabkan kerusakan serius pada alat penerima.
Ujung dari kabel power dan beberapa konektor dari bodi mobil mungkin berbeda dalam warna.
1 Sambungkan ujung berwarna dari kabel power dalam urutan spesifikasi pada ilustrasi di bawah.
2 Sambungkan kabel antena.
3 Akhirnya sambungkan dudukan kabel ke alat penerima.
15 A fuse
Sekring 15 A
Black
Hitam
Blue with white stripe
Biru dengan strip putih
Red
Merah
Yellow
*
2
Kuning *
2
To metallic body or chassis of the car
Ke besi bodi atau casis dari mobil tersebut
Ignition switch
Saklar kontak
Fuse block
Blok sekring
To an accessory terminal in the fuse block
Ke sebuah terminal aksesoris dalam blok sekring
To the remote lead of other equipment (200 mA max.)
Ke ujung jauh dari peralatan lain (maksimum 200 mA)
To a live terminal in the fuse block connecting to the car battery (bypassing
the ignition switch) (constant 12 V)
Ke sebuah tempat terminal dalam blok sekring disambungkan ke baterai
mobil (abaikan saklar kontak) (konstant 12 V)
*
1
Not supplied for this unit.
*
1
Tidak disediakan untuk alat penerima ini.
Line out (see diagram
)
Keluaran (lihat diagram )
Rear ground terminal
Terminal tanah belakang
*
2
Before checking the operation of this unit prior to
installation, this lead must be connected, otherwise
power cannot be turned on.
*
2
Sebelum pengecekan pengoperasian dari alat penerima
ini sebelum pemasangan, ujung ini harus sudah
dihubungkan, selain itu power tidak dapat dihidupkan.
Left speaker (front)
Speaker kiri (depan)
Right speaker (front)
Speaker kanan (depan)
Left speaker (rear)
Speaker kiri (belakang)
Right speaker (rear)
Speaker kanan (belakang)
Purple
Ungu
Purple with black stripe
Ungu dengan strip hitam
Green
Hijau
Green with black stripe
Hijau dengan strip hitam
Gray
Abu-abu
Gray with black stripe
Abu-abu dengan strip
hitam
White
Putih
White with black stripe
Putih dengan strip hitam
Blue
Biru
To automatic antenna if any (250 mA max.)
Ke antena otomatis jika ada (maksimum 250 mA)
Typical connections / Ciri khas sambungan-sambungan
ELECTRICAL CONNECTIONS SAMBUNGAN-SAMBUNGAN LISTRIK
Antenna connector
Konektor antena
Instal4-6_DV4206_008A_f.indd 4Instal4-6_DV4206_008A_f.indd 4 12/14/05 2:02:37 PM12/14/05 2:02:37 PM

Other manuals for JVC KD-DV4205

Related product manuals