EasyManua.ls Logo

Kärcher HKF 200 E - Page 178

Kärcher HKF 200 E
Print Icon
To Next Page IconTo Next Page
To Next Page IconTo Next Page
To Previous Page IconTo Previous Page
To Previous Page IconTo Previous Page
Loading...
- 7
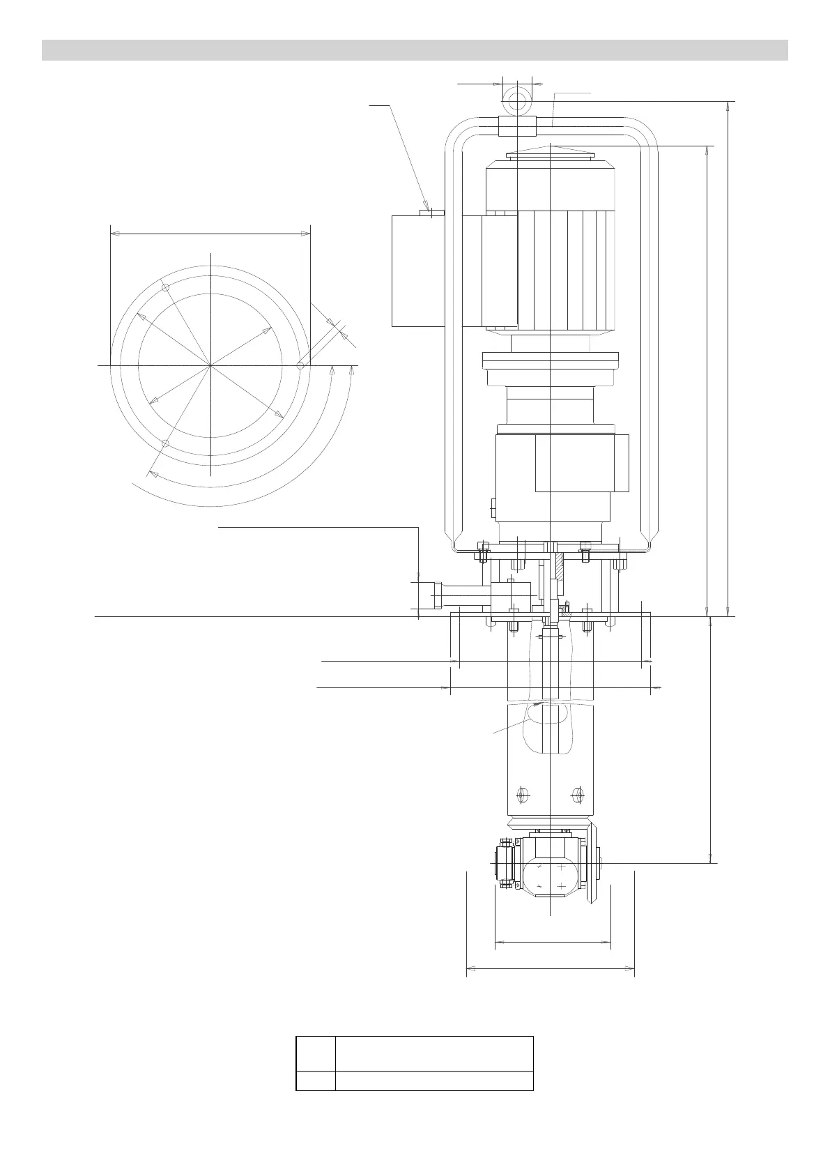
A Wieszak (nr art. 4.034-126)
BDługość standardowa 500 mm
C Zalecany kierunek obrotu
D Średnica kołnierza 250 mm
E Średnica otworu 225 mm
F Strefa 0/20, kategoria 1
G Strefa 1, kategoria 2 wzgl. 3
H Przyłącze ciśnienia M22x1,5
I Wzór otworu kołnierza mocującego
J Doprowadzenie okrągłego kabla (min.
średnica 10 mm - 4x 1,5 mm
2
)
Schemat HKF 200 ET
C
D
E
F
G
H
I
J
30
530
615
180
225
9
120°
3x120°
250
A
B
X
XX
X Minimalna średnica doprowadze-
nia 140 mm
XX Średnica obrotu 142 mm
178 PL