EasyManua.ls Logo

Kärcher HKF 200 E - Page 8

Kärcher HKF 200 E
Print Icon
To Next Page IconTo Next Page
To Next Page IconTo Next Page
To Previous Page IconTo Previous Page
To Previous Page IconTo Previous Page
Loading...
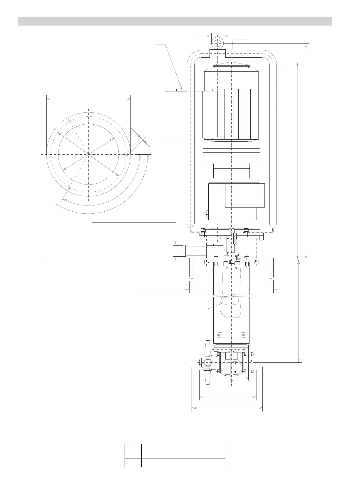
- 6
A Aufhängebügel (Bestell-Nr. 4.034-126)
B Standardlänge 800 mm, Sonderaus-
führung 300-1500 mm
C Vorgeschriebene Drehrichtung
D Flanschdurchmesser 250 mm
E Lochkreisdurchmesser 225 mm
F Zone 0/20, Kategorie 1
G Zone 1, Kategorie 2 bzw. 3
H Druckanschluss M22x1,5
I Lochbild des Befestigungsflansches
J Kabeleinführung Rundkabel (min.
Durchmesser 10 mm - 4x 1,5 mm
2
)
Maßblatt HKF 200 E
C
D
E
F
G
H
I
J
30
530
615
180
225
9
120°
3x120°
250
A
B
X
XX
X Mindest-Einführungsdurchmesser
180 mm
XX Rotationsdurchmesser 200 mm
8 DE