EasyManua.ls Logo

Kärcher HKF 200 E - Page 9

Kärcher HKF 200 E
Print Icon
To Next Page IconTo Next Page
To Next Page IconTo Next Page
To Previous Page IconTo Previous Page
To Previous Page IconTo Previous Page
Loading...
- 7
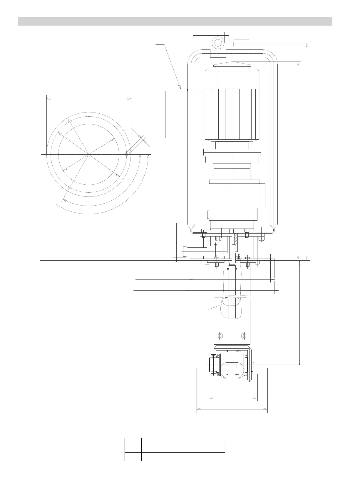
A Aufhängebügel (Bestell-Nr. 4.034-126)
B Standardlänge 500 mm
C Vorgeschriebene Drehrichtung
D Flanschdurchmesser 250 mm
E Lochkreisdurchmesser 225 mm
F Zone 0/20, Kategorie 1
G Zone 1, Kategorie 2 bzw. 3
H Druckanschluss M22x1,5
I Lochbild des Befestigungsflansches
J Kabeleinführung Rundkabel (min.
Durchmesser 10 mm - 4x 1,5 mm
2
)
Maßblatt HKF 200 ET
C
D
E
F
G
H
I
J
30
530
615
180
225
9
120°
3x120°
250
A
B
X
XX
X Mindest-Einführungsdurchmesser
140 mm
XX Rotationsdurchmesser 142 mm
9DE