EasyManua.ls Logo

Kenmore 233.52052 - Page 3

Kenmore 233.52052
16 pages
Print Icon
To Next Page IconTo Next Page
To Next Page IconTo Next Page
To Previous Page IconTo Previous Page
To Previous Page IconTo Previous Page
Loading...
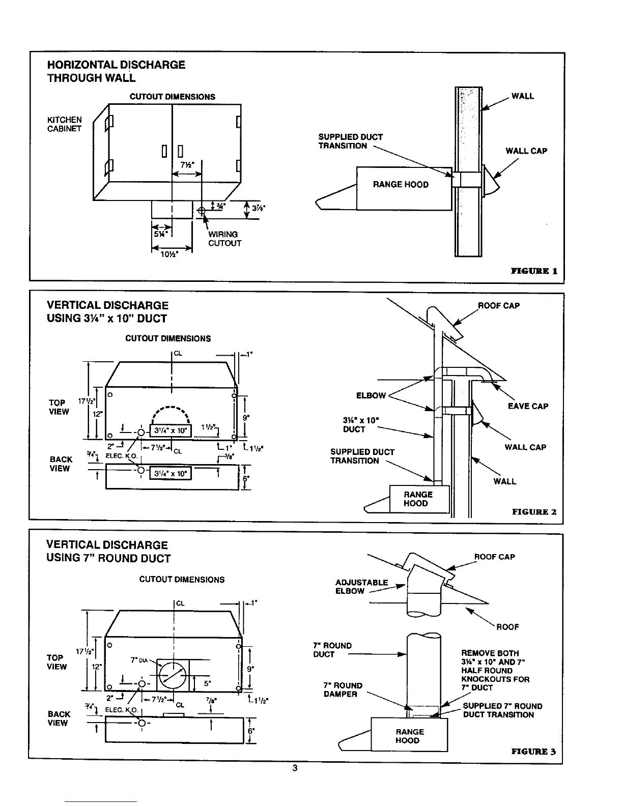
HORIZONTAL DISCHARGE
THROUGH WALL
CUTOUT DIMENSIONS
KITCHEN
CABINET
/
5¼"
DD
7½"
__ w_&
SUPPUED DUCT
TRANSmON
RANGEHOOD
/ WALL
WALL CAP
In[G_ I
VERTICAL DISCHARGE
USING 3V4" x 10" DUCT
TOP
VIEW
BACK
VIEW
CUTOUT DIMENSIONS
_'J/I--_"="I_L L,.
a!'{] ELEC.K.O._ r--3/_"
-- ",.I _ T
T
9"
1
t-11/2"
3Y4"X 10"
DUCT
SUPPLIED DUCT
TRANSITION
RANGE
HOOD
ROOF CAP
WALL
EAVE CAP
WALL CAP
VERTICAL DISCHARGE
USING 7" ROUND DUCT
TOP
VIEW
BACK
VIEW
CUTOUT DIMENSIONS
CL
17 = TDL_
_.J/'l-_,,,:: ,,..
X_- ,o- I
J
9"
Lll/2 .
IF_
ROOFCAP
ADJUSTABLE
ELBOW
_""ROOF
7"ROUND
DUCT
RANGE
HOOD
7"ROUND
DAMPER
REMOVE BOTH
3½" x 10" AND7"
HALF ROUND
KNOCKOUTS FOR
7" DUCT
_UPPLIED 7" ROUND
DUCT TRANSITION
_GtrBLE 3

Related product manuals