EasyManua.ls Logo

KitchenAid KBRS36FMX02 - Page 33

KitchenAid KBRS36FMX02
68 pages
Print Icon
To Next Page IconTo Next Page
To Next Page IconTo Next Page
To Previous Page IconTo Previous Page
To Previous Page IconTo Previous Page
Loading...
IMPORTANTE:
El peso del panel recubierto de la puerta del refrigerador no
puede ser mayor de 50 lb. (23 kg).
El peso del panel recubierto de la puerta del congelador no
puede ser mayor de 30 lb. (13,5 kg).
El peso del panel recubierto de la rejilla superior no puede ser
mayor de 10 lb. (4,5 kg).
Para minimizar el peso del panel, puede usar franjas
espaciadoras de 2" (5,08 cm) alrededor del perimetro en lugar de
paneles espaciadores de hoja plena macizos. Las franjas
espaciadoras deben fijarse a una distancia de al menos 1"
(2,54 cm) de la parte superior, inferior y extremos laterales del
panel de soporte. Si usa franjas espaciadoras, se recomienda
que use 2 franjas de 2" (5,08 cm) centradas horizontalmente para
soporte adicional.
NOTA: Para que la rejilla y los paneles de la puerta queden
alineados, el panel recubierto para la puerta debe ser 1A"
(6,35 mm) mas espeso que el panel recubierto de la rejilla.
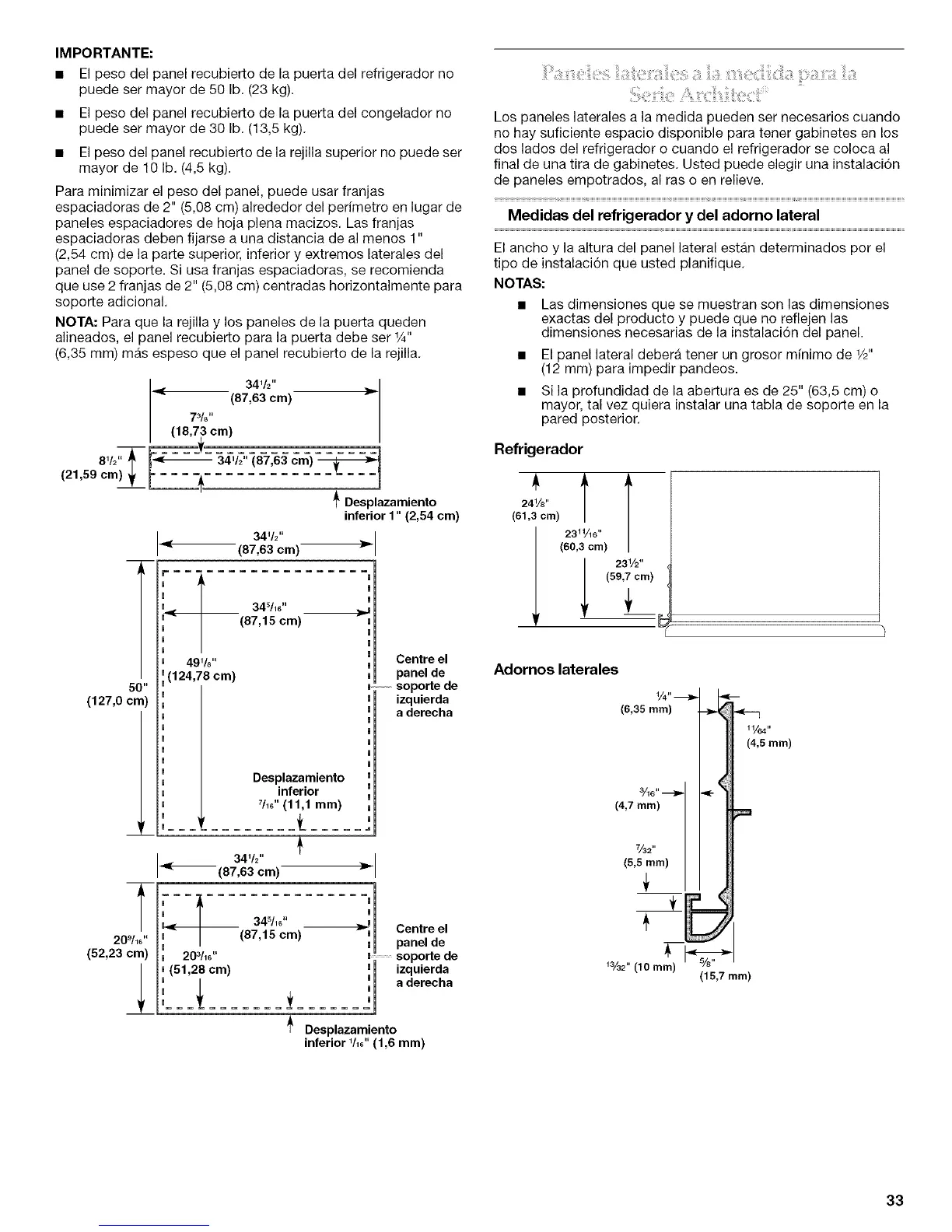
341/2"
(87,63 cm)
7%"
(18,73 cm)
(87,63cm)
(21,59cm)t r---o€
'1
Desplazamiento
I_. 341/2''
(87,83 cm)
k
_t
49%"
(124,78 cm)
50"
(127,0 cm)
(87,15 cm)
Desplazamiento
inferior
7h6"(11,1 mm)
_t
inferior 1" (2,54 cm)
Centre el
panel de
soporte de
izquierda
a derecha
t
209/16''
(52,23 cm)
- 341/2"
(87,63 cm)
_--1 34%6"
I (87,15 cm)
203h6"
(51,28 cm)
--_'i Centreel
panel de
soportede
i izquierda
a derecha
_* Desplazamiento
inferior 1/_6"(1,6 mm)
Los paneles laterales a la medida pueden ser necesarios cuando
no hay suficiente espacio disponible para tener gabinetes en los
dos lados del refrigerador o cuando el refrigerador se coloca al
final de una tira de gabinetes. Usted puede elegir una instalacidn
de paneles empotrados, al ras o en relieve.
1 r r rr r
Medidas del refrigerador y del adorno lateral
El ancho y la altura del panel lateral estan determinados pot el
tipo de instalaci6n que usted planifique.
NOTAS:
Las dimensiones que se muestran son las dimensiones
exactas del producto y puede que no reflejen las
dimensiones necesarias de la instalaci6n del panel.
El panel lateral debera tenet un grosor m(nimo de 1/2"
(12 mm) para impedir pandeos.
Si la profundidad de la abertura es de 25" (63,5 cm) o
mayor, tal vez quiera instalar una tabla de soporte en la
pared posterior.
Refrigerador
241/8"
(61,3 cm)
(69,3 cm)
23V2"
(59,7 cm)
Adornos laterales
1/4"
(6,35 ram)
3/16" _1
(4,7 ram)
(5,%turn)
1a/a2"(10ram) %"
(15,7 ram)
1V64"
(4,5 ram)
.<
33

Other manuals for KitchenAid KBRS36FMX02

Related product manuals