EasyManua.ls Logo

KitchenAid KRSC503ESS - Installation Requirements

KitchenAid KRSC503ESS
64 pages
Print Icon
To Next Page IconTo Next Page
To Next Page IconTo Next Page
To Previous Page IconTo Previous Page
To Previous Page IconTo Previous Page
Loading...
3
INSTALLATION REQUIREMENTS
Tools and Parts
IMPORTANT:
Observe all governing codes and ordinances.
Installer: Leave Installation Instructions with homeowner.
Homeowner: Keep Installation Instructions for future reference
and for the local electrical inspector’s use.
Keep cardboard shipping piece or plywood under refrigerator
until it is installed in the operating position.
Comply with installation specifications and dimensions.
Remove any moldings or decorative panels from kitchen
cabinets that would not allow access to the refrigerator for
service.
Contact a qualified electrical installer.
TOOLS NEEDED (on some models):
Gather the required tools and parts before starting installation.
Read and follow the instructions provided with any tools listed
here.
PARTS NEEDED (on some models):
Your refrigerator dealer has a kit available with a ¹⁄₄" (6.35 mm)
saddle-type shutoff valve, a union, and copper tubing.
Or you can purchase a ¹⁄₄" (6.35 mm) copper tubing with
shutoff valve and a ¹⁄₄" (6.35 mm) compression fitting
(coupling).
Depending on water line connections, you may also need a ¹⁄₄"
(6.35 mm) nut and ¹⁄₄" (6.35 mm) ferrule.
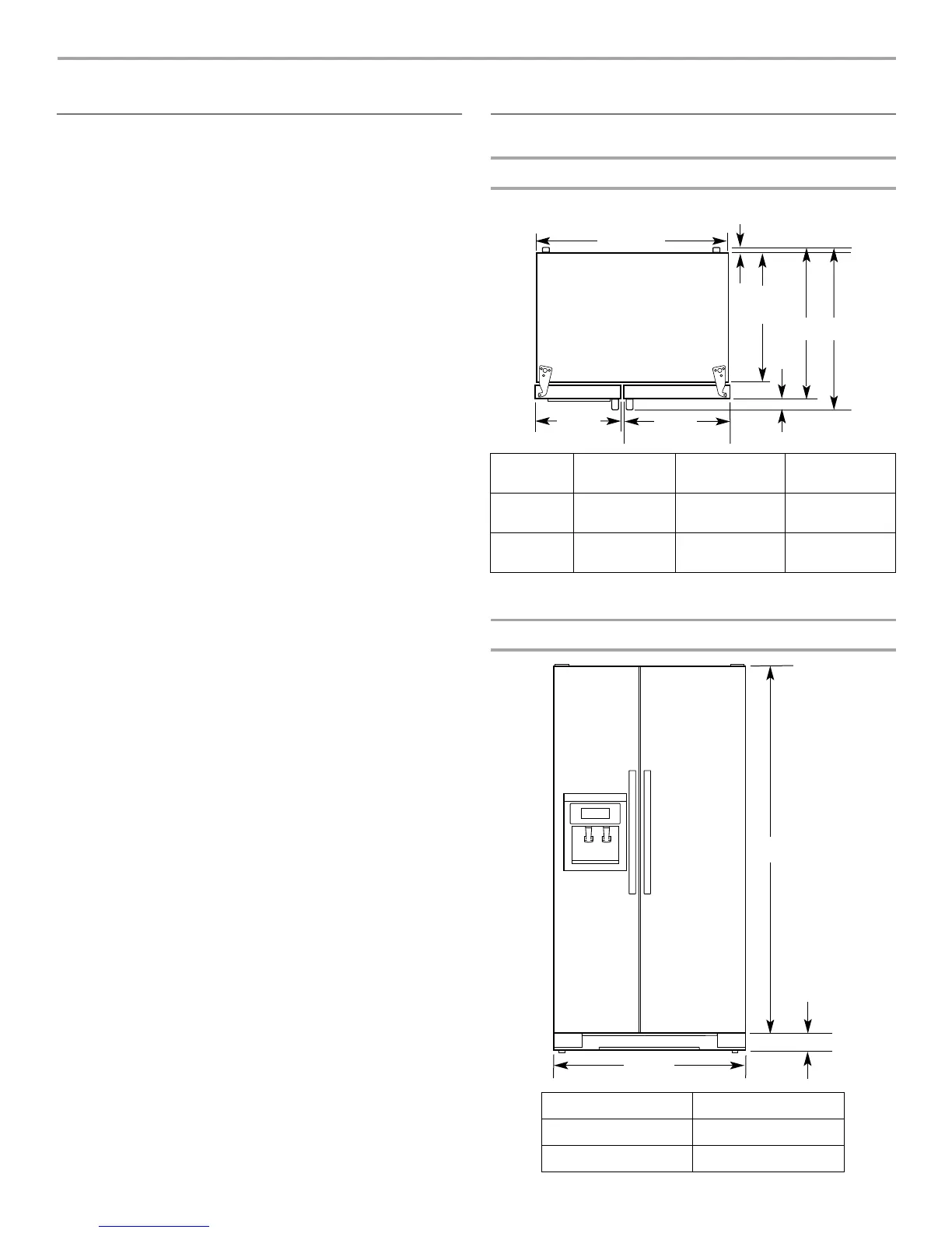
Product Dimensions
Top View
*Dimension may vary based on style of door handle.
The depth for the largest available handle is listed.
Front View
Cordless drill
¹⁄₄" Nut driver
and drill bit
Flat-blade
screwdriver
⁵⁄₁₆" or adjustable wrench
⁷⁄₁₆" and ¹⁄₂" Open-end wrenches
Two adjustable wrenches
³⁄₈" and ¹⁄₂" Socket wrenches
Door
Style
Depth
A
Depth
B
Depth
C
Flat 27¹⁄₂"
(69.8 cm)
2⁵⁄₈"(6.5cm)
maximum*
30" (76.3 cm)
maximum*
Curved 28⁵⁄₈"
(72.5 cm)
2⁵⁄₈"
(6.5 cm)
31¹⁄₈"
(79.1 cm)
Model Size Height A
69" 65³⁄₄" (166.9 cm)
72" 68¹⁄₈" (172.9 cm)
A
C
35¹⁄₂"
(90.0 cm)
23⁷⁄₈"
(60.4 cm)
15³⁄₈"
(38.9 cm)
20"
(50.8 cm)
B
⁵⁄₈"
(1.6 cm)
35³⁄₄"
(90.8 cm)
A
3
¹⁄₄"
(8.2 cm)

Table of Contents

Related product manuals